查看完整案例


收藏

下载
-1F设计平面
1F设计平面
2F设计平面
3F设计平面
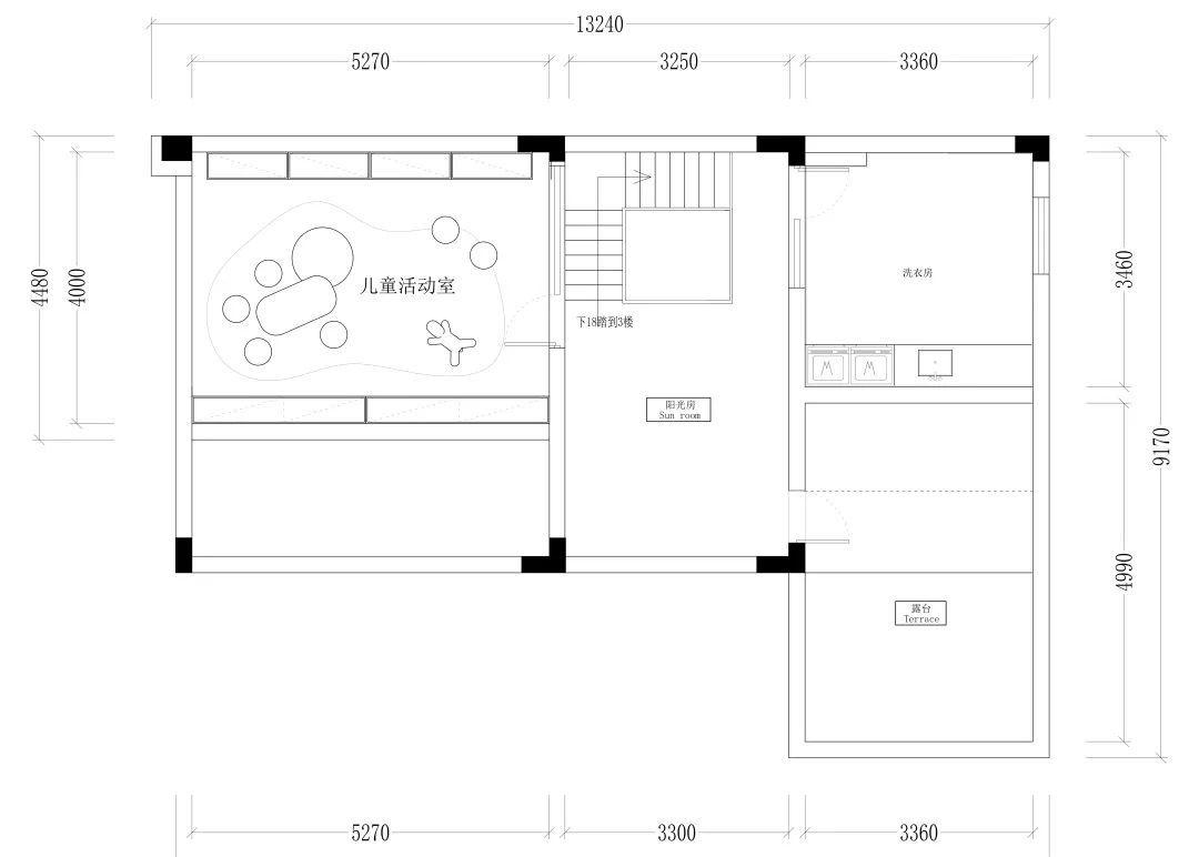
4F设计平面
在这个家里,我们能看到很多“情怀”的东西,熟知的《读者》杂志,俏皮的颜色,不规则的形状,这是业主内心对于生活的向往和“憧憬”摆在空间里,它恰到好处地“代表”居住者的个人“色彩”
餐厅与客厅相连接,是一个长条形的空间,在动线上是比较开阔的,对于二胎家庭来说,“收纳”很重要,所以设计师在设计时,将餐厅的一面背景设计了大面积的收纳,保证储藏功能,同时与水吧的结合,满足西厨的需求。
业主对地下室的空间设计和餐厅的空间设计非常满意,地下室空间是待的最多的空间,可以满足一家四口不同的娱乐需求。
特别值得一提的是顶楼的“儿童空间”,利用顶楼的异型顶,给二宝做了一个游戏空间,因为顶楼除了这个房间还有一个晾晒区,这样的设计特别兼顾住在别墅,妈妈既要照看孩子,又要家务时,非常便利,并且安全的设计。
地下室既有“动”的游艺室
也有“静”的茗茶,书法的空间
2F楼梯玄关处利用起来,做了一个敞开的公共书房
主卧是套间的模式,依然遵循“简约”与“个性”的标签,用黑色与蓝色,简练的设计语言,表达精准的个性标签。
业主两个男孩,一个是初中,一个在读幼儿园,在年龄上是有一定区别,所以在功能设计时,设计师根据不同年龄层次设计了不同“氛围感”的卧室。
年龄层次不同,卧室的风格、颜色以及功能也会有所区别,年龄大的,更注重私密性,年龄小的房间更注重敞开化,简单设计,为成长变化做一定的“空余”准备。
预留的老人房间,老人有看电视的习惯,卧室面积也比较足够,所以在靠窗位置,摆放了电视机,并且预留了休闲区,满足老人的生活需求。
本屋有2个院子,前院面积更大,更适合亲朋好友聚会。
后院更适合一个人发呆,休闲。
客服
消息
收藏
下载
最近






























