查看完整案例


收藏

下载
Z的第一套刚需房的装修就是由鸿鹄设计操刀的,第二套改善房依旧选择了鸿鹄(万分感动)。对于这次装修,一家人都有着很高的期望,不仅希望它能提高以后的生活质量,更希望宝贝女儿以后恋爱、结婚,能从这个新家风风光光的走出去。
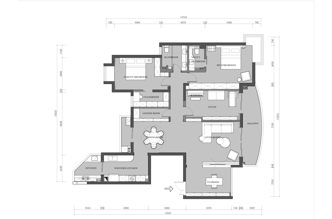
首先我们来看看原始户型图
缺点
开放的空间布局可规划为四房,南北两各可做两间房间,北面房间面积较为局促,使用舒适度较低。户型布局较为零散,空间分隔多,利用度低
优点
户型方正南北通透,入户大门前有入户花园,动静分区合理,采光充足。
基于业主家的人口情况及年龄层次,设计师对整体区域做了房间面积和功能的重新规划和分布。
1. 入户大门外移改至入户花园入口处
2.业主做饭的频率较低,女儿出国留学回来,将厨房改为中西厨结合。
3.原始北面两间卧室,靠东边的卧室作为父母房使用,西边的房间一分为二,一半作为父母房的衣帽间,一边作为储藏间使用,增强了父母房的收纳功能和使用功能的同时还扩大了餐厅的使用空间和舒适度。
4.南边两间房间,靠东向规划为女儿房,西向为多功能房,我们拆除了原有的隔墙,把墙面整体向西平移,把女儿房的衣柜嵌入到墙体里面作为一个整体,
5.电视背景墙原有的门洞拆除,墙体拆除至承重结构部分,把茶室及客厅串联起来使空间更为通透大气,悬浮式的岩板电视背景墙作为造型墙面双面使用。
入户便是男主人的茶室,一面半悬浮的墙,让客厅和茶室之间有着似隔非隔的划分,玄关客厅衔接,拥有共同的开放空间,在功能上各司其职又遵从整体基调上和谐统一。
半开放式让整个茶空间更加的开阔敞亮,玄关做了满墙的收纳柜,兼顾鞋柜,茶叶储存空间,茶具展示,日常生活用品储存等功能。
进门就能感受这个家独有的氛围,现代简约真的是治愈又高级!
客厅采用嵌入式射灯+磁吸轨道灯打造无主灯空间,大块面的平顶简洁干净,拉伸视觉层高,地面通铺仿大理石瓷砖,白色为轴,整体线条利落简洁,彰显低调、高级质感
半悬浮电视背景墙,隔而不断,内外视线通达,打造互动的空间,又在一定程度上保障了隐私,底部搭配电子雾化器,冷暖对比
色调上:以米色、白色、木色为基调,亮色家具辅以点缀,
材质上:原木、大理石、玻璃各元素相互碰撞,衬托融合,在细节上用岩板、石材去提升整个空间的层次感和丰富性。
客餐厅位于统一的平行空间,家人交流方便,选择深色木格栅和米色硬包相互呼应,营造欢乐的居住氛围。空间整体在丰富的材质搭配及深与浅的色彩对比下,展现出现代感的宁静与优雅。
书房更像一个多功能房,是女儿的一片小天地。钢琴还在路上~~~~但吉他,小提琴已经就位,闲暇时有音乐陪伴,心情都会轻松许多。
通透的光线和无主灯光源,玩味出不同的情调,明亮还是柔和,优雅或者暧昧。设计的留白之处,是充分创造自由度。
不同于客厅的现代利落,父母房我们以木格栅+硬包调出一些温馨感。并且还为女主人留出了步入式衣帽间。
女儿的卧室充满了温润的奶油质感,大面积的香槟色,给卧室增加了优雅的甜。床前整面的定制柜,让女孩四季的衣服都拥有自己的空间和体面。
说起来这次的装修真的是一波三折,因为疫情,中考,高考几次停工,但是没有辜负他们的期待和信任,最终交出一份满意的答卷。
很荣幸能够遇见可爱的业主们,总是给予我们和肯定的反馈,最后再次感谢z一家人的信任和支持。感恩所有遇见。
客服
消息
收藏
下载
最近






















