查看完整案例


收藏

下载
新生
任何一个空间,在设计师的眼里都是有生命力的,他的生命形态,是设计师和业主共同赋予,用光,用生活不断滋润,幻化成一个有温度的样子。
本期案例是一户老房,而设计师是一个95后新锐设计师,老与新的碰撞,让这个空间“别开生面”。
也许合作中会有一些捉襟见肘的窘迫,但是作品和设计师一起成长,给业主打造了一份现世安稳的生活状态。
Main Application:100㎡
Design:鸿鹄设计
Construction:鸿鹄设计
业主对于生活的热爱,全部隐藏在生活的角落里,在空间的每个地方也都藏着生活带来的惊喜。蜕变是一个痛苦的成长,但是结果总会带来喜出望外的惊喜。
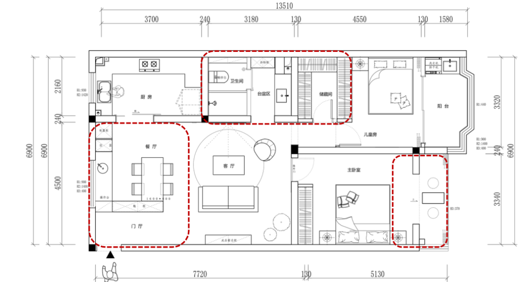
每位业主拿到房子都是赋予无限的期盼,他会有一副属于自己的生活愿景,本案是一个位于市中心的老房,地里位置是在沿街,所以采光上面是无遮挡的,设计师充分利用光线,让老房焕发新生。
由于结构原因,在墙体结构的处理上,并没有太多的改动,也是老房的原因,100平米的房子得房率很高,所以在户型规整上,每一个空间都是相对宽敞的;并且在原有的次卧空间里面“生”出了一个“衣帽间”,把原有的小阳台纳入主卧,并且做了地台处理,给卧室腾出了一个休闲空间。
原木是整个空间“打底色”,舒适是空间的主体调性;设计师运用了材质和空间的切割,让空间变得利落又有互动性。
大白墙和原木是设计的“万金油”;在原有餐厅的位置,加设了西厨空间,更符合现代人的生活功能,同时动线的流畅性也增加了。
用玄关柜的设计,避免厨房对着大门的尴尬;同时也给收纳增加了空间。
艺术水泥漆的运用,给空间注入了一些个性化元素,灰色的白搭感,又很好的融合到了空间中。
把小阳台纳入原有卧室空间,运用地台挑高,给业主打造了一个心仪的喝茶休憩空间。
卧室床的背景墙,运用木饰面油漆的材质混搭,给卧室增加了几分“文艺感”。
厨房是一个“回”字型空间,动线和高低都比较适合业主操作。
责编:W
客服
消息
收藏
下载
最近






















