查看完整案例


收藏

下载
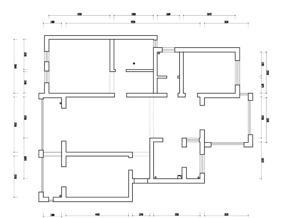
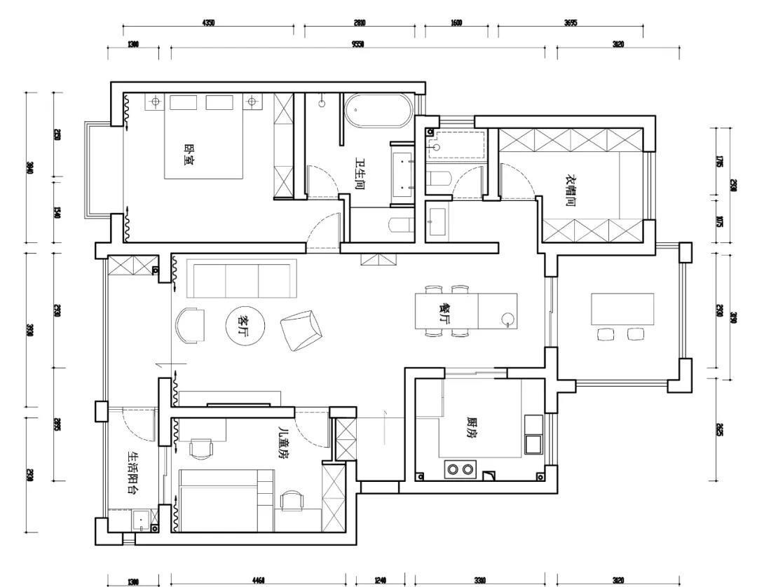
优点:通风采光都很好,附带两个大露台 缺点:餐厅 结构琐碎,厨房利用率低。
更改儿童房的入户位置,借用原有门洞做鞋帽柜,地面下沉,整体做下沉式玄关。
主卧及儿童房全部做隐形门处理,沙发背景采用同一种材质处理,延长至南北阳台拉伸视觉。
更改原有客卫的交通流线,餐厅背景和客厅一脉形成,非常完整,增设岛台,解决餐厅过长问题,兼具收纳功能。
增设飘窗空间,衣帽间外移到北面房间,扩大卧室面积,提升舒适度。
北面阳光房改建书房兼茶室。
扩大原有主卫面积,增设浴缸,淋浴,马桶,洗漱台互不干扰。
客服
消息
收藏
下载
最近













