查看完整案例

收藏

下载
©微风建筑摄影-郭哲
在喧闹的三里屯想要打造“春台”之感,必须要在细节上营造一些“尘烟外”的感觉。我们在做方案时首先想到的设计是“曲径通幽”,而这个词,就来自这首《题破山寺后禅院》。
感谢
晓欧设计事务所
春台
“山间月下,春台景明。”你们猜我们的新作品在哪里?就在以繁华和商业著称的北京太古里。有人说,太古里那么商业,怎么能有一片如此诗意的土地?巧合的是,在太古里商圈的最右侧,恰好有一个近似“独栋”的建筑,把它和周围的浮躁分割来开。客人至此,有如春天登台,“熙众人”,“止过客”。
▲室内空间概览
©微风建筑摄影-郭哲
城市里也能打造一片“山间月下” 室内空间没有登眺览胜的雄阔,要如何实现“春台”之感呢?既然原始结构纵深长,层高高,不如“将计就计”, 加强纵深和光影,把空间的空阔感加到最大!
▲外观
©微风建筑摄影-郭哲
原始结构里,一条横梁横亘其中,我们就在上梁的交界处新增一根立柱,从进门处看上去,就如同一个大十字架支撑室内空间。这根立柱刚好拉长纵深,也不妨碍空间的宽广和舒适感。我们顺势在“十字架”结构上打造了一个大斜面吊顶,斜面上方利用暖光灯膜做了一轮“圆月”,引导客人的视线往上看,有“月光下泄”之感。
▲入口
©微风建筑摄影-郭哲
玄关空间©微风建筑摄影-郭哲大厅的另一端,一片青绿与圆月对向遥望。上方的玻璃幕墙引进强烈的室外光,光影倾泻在这片青绿上。都知道“曲径通幽处”,你们知道它的上一句是什么吗?是“初日照高林”。这个设计刚刚好满足这个意境。
▲入口用餐区
©微风建筑摄影-郭哲
▲青绿与圆月对向遥望©微风建筑摄影-郭哲“山有小口,仿佛若有光”。门厅、入口处,还有登上天台的楼梯,我们都花了一点小心思,做了一点“弯弯绕”。入口处的层高较低,我们刚好利用这个特点,把它做了“洞口”的形状。刚好满足那句话:“山有小口,仿佛若有光”。入“洞”后并不直接进入大厅,顺着门厅的幽暗灯光的指引,推门,转身。曲径通幽后,看到内在的“洞天”,更觉得豁然开朗~“曲径”不止一处。大厅背后,厨房旁边,一条狭长的楼梯通往存酒区。有趣的是,在这个小小的区域,不仅能近距离看到“圆月”、如在山顶般俯视大厅,更是倾斜往上,通向四层露台。
▲内部用餐区
©微风建筑摄影-郭哲
▲窗边用餐区
©微风建筑摄影-郭哲
▲私人卡座
©微风建筑摄影-郭哲
▲用餐区家具
©微风建筑摄影-郭哲
有的空间,需要“隐藏”。在“圆月”的对面,一条狭长的小道通向吧台区。这片方寸是酒客的专属。独酌也好,齐饮也罢,来到此处的人,多少是为了短暂地“置身尘世外”。一条“幽径”,既完成了空间的起承转合,也完成了心情的由动入静。“圆月”之下,立柱之内,这个空间刚好面对厨房和通往吧台的小径,我们在此设了一扇屏风,让它可开放,可闭合,客人就餐时不会受到人来人往的干扰。空间有时需要“联通”,有时需要“隐藏”。这点和人与人之间的交往,倒是很像。
▲吧台区
©微风建筑摄影-郭哲
有质感的空间,自己能留住过客。一个空间吸引人的或许是门面,而留住人的,是质感。要想让人有“止步停留”感,颜色不能太闹,光线不能太刺眼。我们在配色上,用了低调的水泥灰+原木色,灵感是质朴的“尘”与“土”。
▲楼梯通向二层
©微风建筑摄影-郭哲
窗户和幕墙都用了茶色磨砂半透明材料,过滤掉强光,营造朦胧的氛围感。自然光已经足够明亮的条件下,灯具也选用了非直射灯做补充光。光够柔,气氛才更缓和。
▲二层平台
©微风建筑摄影-郭哲
▲二层空间
©微风建筑摄影-郭哲
▲俯瞰一层空间
©微风建筑摄影-郭哲
题外记:在喧闹的三里屯想要打造“春台”之感,必须要在细节上营造一些“尘烟外”的感觉。我们在做方案时首先想到的设计是“曲径通幽”,而这个词,就来自这首《题破山寺后禅院》。也作为灵感分享给你们。
▲细部
©微风建筑摄影-郭哲
清晨入古寺,初日照高林。曲径通幽处,禅房花木深。山光悦鸟性,潭影空人心。万籁此俱寂,但余钟磬音。
▲夜景
©微风建筑摄影-郭哲
项目图纸
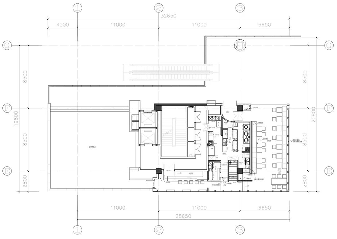
▲首层平面图
©晓欧设计事务所
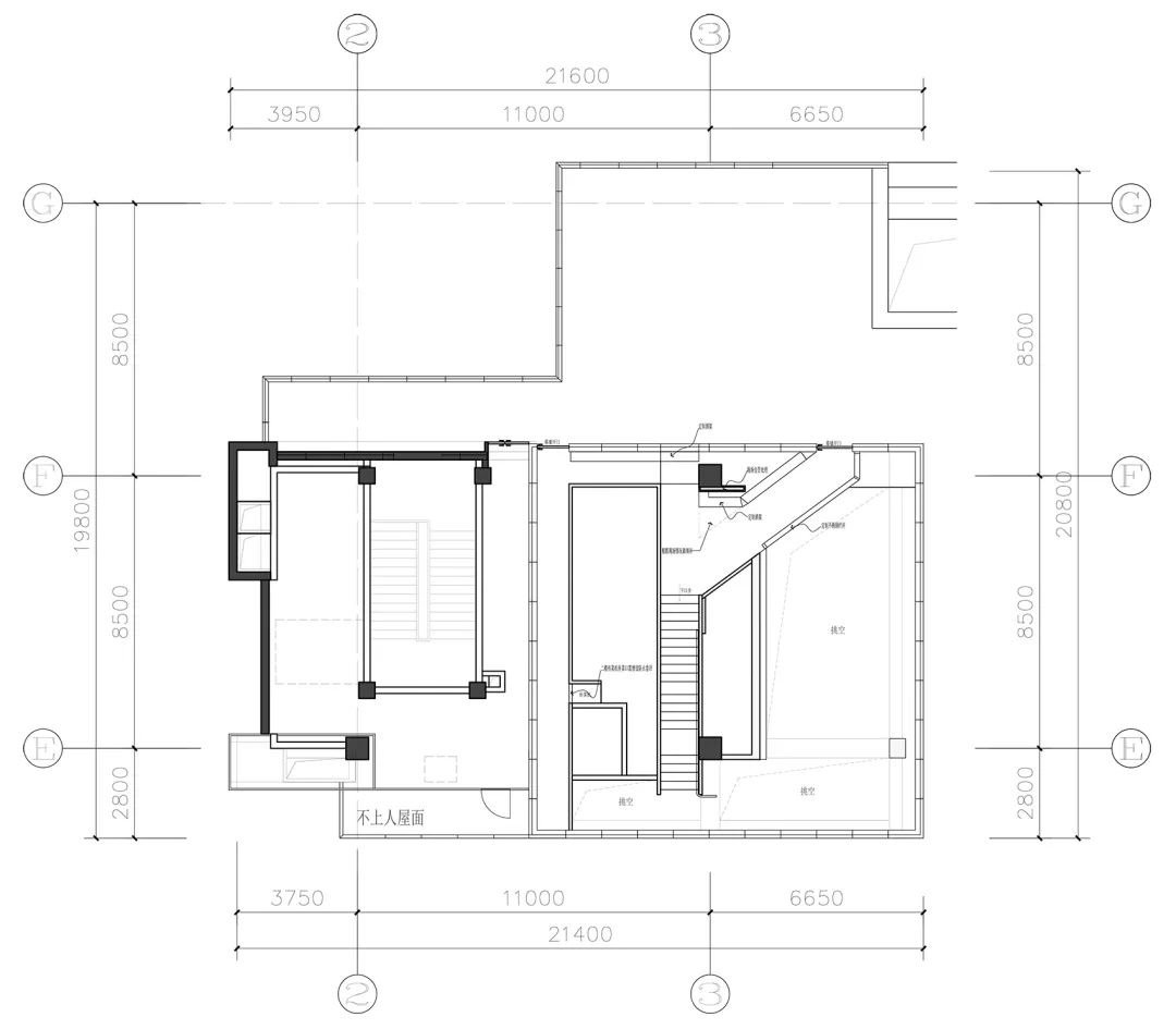
二层平面图©晓欧设计事务所项目名称:春台SpringPatio(三里屯店)项目类型:云南菜设计方:晓欧设计事务所项目设计:2021年10月完成年份:2022年7月10号设计团队:晓欧、张爱林、杨宇航项目地址:三里屯路19号三里屯太古里南区3层S9-31建筑面积:188㎡摄影版权:微风建筑摄影-郭哲客户:王英鹤材料:微水泥,真石漆,喷砂不锈钢,茶色玻璃,茶色亚克力,Alpi木皮,玉石玻璃,做旧铁板,火烧面石材,棕红文化砖,黑色方形地砖,定制柚木道具品牌:Alpi小号小号小号
客服
消息
收藏
下载
最近


























