查看完整案例


收藏

下载
No Distance Space
(*为提供良好的阅读条件,请锁屏后横向浏览)
▎ 无 . 风格 我们对于风格并无过多讲究,空间价值的前提应该是建立于以实用为目的的基础之上。我们在本案的考量中,将空间尽量释放开来,希望在满足基础功能之后,还原空间本质,带领人重新去审视空间意义。
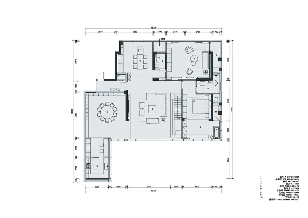
▎ 无 . 界限 从业主的角度出发,设想一系列生活场景,予以细化,希望人能在空间中得到沟通,形成更亲密的关系。客厅延伸至品酒区,再由品酒区向厨房餐厅过渡…以地面抬高的形式和不同的地面材质形成功能区域的“软隔断”,赋予空间自由的流通感。
▎ 厨房延伸出吧台空间,进一步细分空间结构。相同的色彩构造,相同的材质肌理,赋予空间整体性的感知。极大化的利用光照,在窗户下设立吧台,构建情境空间,形成内与外的联系对话。
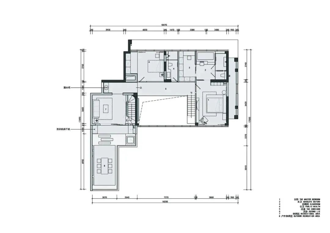
▎ 无 . 定式 原始屋况动线混乱,二楼被分为两个互不相通的空间。于是我们将原结构打破重组,拆除原先的两座楼梯,重新规划楼梯路径,与客厅背景墙形成互动关系,打通原本封闭的两个空间,使二楼空间更具整体感。
▎ 由二楼起居室通往三楼书房的楼梯较窄小,我们不希望空间是压迫拥挤的,于是将电视背景墙降低,留下视线的空隙,提升楼梯空间的明亮度与宽松感,同时也形成了两个空间的联系,人行走于楼梯之上,也成为空间里动态的表达。
▎ 无 . 拘束 化的利用巨大的落地窗,将窗外大片江景纳入视野,感受阳光撒入室内,透过物体形成的参差不同的影。也可以在夜色里,独立窗前,听江畔晚风,享受无拘束的静谧。
▎ 主卧用灰色与木色铺陈静谧舒缓的空间情绪,不做过多的修饰,以收敛的笔法营造适宜放空与思考的空间。我们希望将更多的空间交予居住的人,用少的语言诠释多的意义。
▎ 无 . 距 余晖落日下,家也不过是万千灯火中的一盏,行人匆忙,终是为了归家之后的一口暖汤。我们将空间拆解重组,愿在此间的你,无距亦无惧,无论空间还是内心,都能寻求到一份平静。
客服
消息
收藏
下载
最近



























