查看完整案例

收藏

下载
整套房子分为上下两层和地下停车库。单层的面积改造后大约有203平方米。一楼还有超大的后花园。由于房屋属于很多年以前的建筑,房间的布局和采光通风都存在着一些不尽人意。
二楼的部分,可以增加的空间非常多。
x先生原本计划一楼给自己住和长辈住,二楼给儿子住。但希望能够把一套房子改成两套,既能相互独立,又相互关联。所以我们把一楼到二楼的楼梯转换一个地方,使之成为两套独立的房子,所有的进门都是从一个方向。在土建改造完成之后,x先生突然觉得两层加起来400多平米已经超出了现在家人的需求。儿子正在读高三,5年内常住在家里的可能性不大,既然房子已经分离出来了,不如只装修采光、通风和隐私性最好的二楼。至于一楼何时装,是否作为自己的建筑事务所还在纠结中······
二楼的部分我们提出了一个“裸奔”的概念。何为裸奔?原本公共区域考虑和很多种方案,比如餐厅的位置原本打算作为独立的客房、书房等,最后我们觉得在房价肆意疯涨的今天,没有必要把一个空间浪费在不常用的时候。要让整个公区空间最大化,将客厅、餐厅、厨房全部“裸露”出来,不设置任何屏障,可以随意改动布局,故叫做“裸奔”。开放式厨房设置在客厅的过道中,将空间利用到极致,把“厨房社交”的概念引入。重新规划后空间,每一间卧室都非常大。
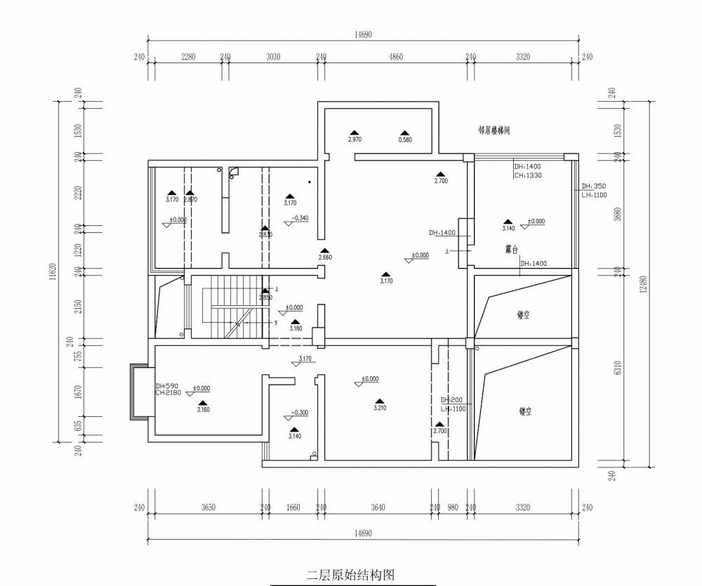
改造前的整体空间布局不合理。没有用的墙太多。大面积的挑高过度浪费空间。重新规划后的上下两层,一套房变成两套房,既相互独立,又相互关联。每一层的面积都足够大。
各个空间配色系统。
施工环节中最重要就是墙面乳胶漆的涂刷,全屋光是墙面就有11种颜色,设计师在现场蹲守了两天,不同的色号不同种类的漆,因为有的颜色是小面积使用,需要人工调色。不断调色、实验才达到最后满意的效果。好在工人师傅没有抱怨,很仔细地涂刷了不同颜色。
改造后的外立面无法用原材料复原,为了看起来不那么老气,但又不突兀,外墙用了白色的外墙漆和周围的原瓷砖搭配。夜幕降临后的外观,成为整个小区里面最亮眼的建筑。尽管小区比较老,比不上现代化的花园小区,但业主依旧能有“此心安处是吾乡”的情怀。
如果说一楼的风格是冷淡风(未施工),那么二楼绝对是热烈风!客厅区域,用了大面积的撞色。来过现场的朋友都不敢相信这竟然是一个中年大叔的家。
因为业主平时工作比较忙,在家就餐的时间很少,饮食习惯也相对清淡。所以我们把厨房放在客厅,利用过道作为厨房操作区域,大大地节省了空间。集成灶的使用让厨房更干净利落。
无论是家具还是其他软装,我们力求用最跳跃的款式和颜色。
整个公区非常通透。
三楼四楼邻居家楼梯的隔间,被开发商归纳给了二楼的住户,利用这样的斜角空间,做成了一个休闲区域,成功得解决了美观又实用的原则。客厅采用模块化沙发,可以任意增。每一个沙发模块都可以随意搬动。有朋友来做客,在家看一场电影,开一个Patty,蹦一下迪,也不是没有可能的。
2米长的超大餐桌,完全没有拥挤的感觉,无论是会客还是办公、阅读都十分便利。窗外的绿意黯然,藤椅使整个空间提升了自然轻松的感觉。书架就像罗马建筑的里的壁龛。
特意摆放了一个与建筑有关的混凝土小摆件。
每一套案例在设计稿出来之后,我们就在想像它落成之后的样子。很多软装饰品都是设计师在参加各种展会或者旅行过程中淘回来的。
每层楼都有3米多的层高,这是是非常难得的,而我们更想保留这样的高度,让空间更大气。整套房子除了楼梯间和客房(没有吊顶)用了吊灯之外,其他空间全部使用点光源和漫反射灯带,让空间的照明和气氛更柔和。
除了墙面的色彩,不同颜色、不同材质布料拼接的窗帘也个性十足,没有人规定某种东西一定需要怎么做,打破界限是我们一直追崇的理念。
之前的案例中很多网友问,我们为什么喜欢设计蹲厕,这个问题还挺尴尬的。其实这是和一个地域习惯有关系,西南地区的家庭如果家庭成员比较多,只有一个卫生间的情况下,大多会使用蹲厕;如果有两个卫生间可能是一个蹲厕一个马桶。
主卧室用了“自古红蓝成cp”配色方案,冷静与热烈交织。上下错层的吊顶是为了遮住顶梁和预埋空调机位。这样的设计,还让人产生一种空间错位的感觉,让原本方正的空间更有趣味性。
每一幅窗帘都像一幅色彩构成的画。
不成套的家具组合,一直是我们设计上的特点。
宽敞得像客厅的主卧室。设计师比较担心住颜色这么多的房子时间久了会不会产生视觉疲劳,毕竟这是一个家,让心灵休憩的地方,不是网红民宿。所以在卧室电视墙和其他空间视线停留比较久的地方我们进行了大量的留白,或者使用单色,避免审美疲劳。
主卫出来后的衣帽间,预留了给排水的点位,但没有按照原计划装浴缸,而是作为日常的更衣和备衣区使用。
x先生的儿子正在读高中,喜欢打篮球,所以用了圆和弧形的灵感来对他的房间进行设计。x先生的儿子给我的感觉是一个非常有礼貌的小伙,燕尾床非常符合他的绅士风度。
x先生每当提起的儿子,他脸上总是挂着笑容,但不多言,也许这就是父亲含蓄的爱。我们特意挂了一副x先生儿子偶像詹姆斯的背影海报在床头。希望正在读高三的他也能勇往直前。
公区的书房对于家里需要做作业的孩子难免有点吵闹,所以儿子房也放置了一张休闲椅和书桌。
大尺寸的书桌,能想象到深夜伏案夜读的画面。职业病,第一眼就觉得这个书桌和适合设计师画图,只是不知道以后X先生的儿子会不会和他一样从事这一行业,想得有点久远了······
客房没有任何造型,3米多的空高会显得空间比较瘦。上下墙分色的设计方式让房间的比例更协调。
x先生说,“你经常在这边出差,以后客房就给你留着,可以随时过来住。”我们不像客户和服务者的关系,更像是一对忘年交,可以大胆地讲述自己的想法,开带颜色的玩笑。无论是做人还是做事,x先生都给我很大的启示。
没有衣柜的客房,无论哪个角度都不会显得拥挤。
客服
消息
收藏
下载
最近











































