查看完整案例

收藏

下载
围合式的会客厅,不仅作为舒适的就餐等候区还方便商务洽谈。金属质感的吊顶设计尽显庄重与华丽,中式沙发舒适又有硬朗的感觉。
将自然元素与富丽堂皇的用餐环境结合,让用餐的人们可以放下身心体会环境的舒适。
多处采用大理石铺贴也是为了彰显空间的华丽与堂皇,在结合木饰面处理又增加中式格调的素雅的文化底蕴。
皮雕的屏风给空间营造出一种低调的奢华感。
休闲区做一个台球空间,增加互动性的同时也足够安静。有几人围坐的沙发和边几,可以随时坐下来喝茶品酒。
将过廊尽头也用山水画造景空间处理,让单调的过廊也增加文化氛围的加持。
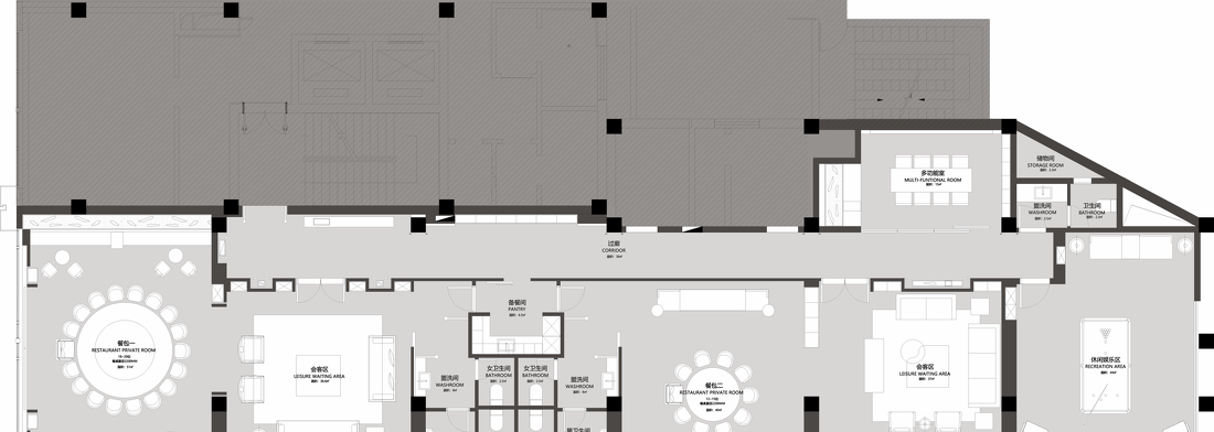
平面布局图
客服
消息
收藏
下载
最近











