查看完整案例


收藏

下载
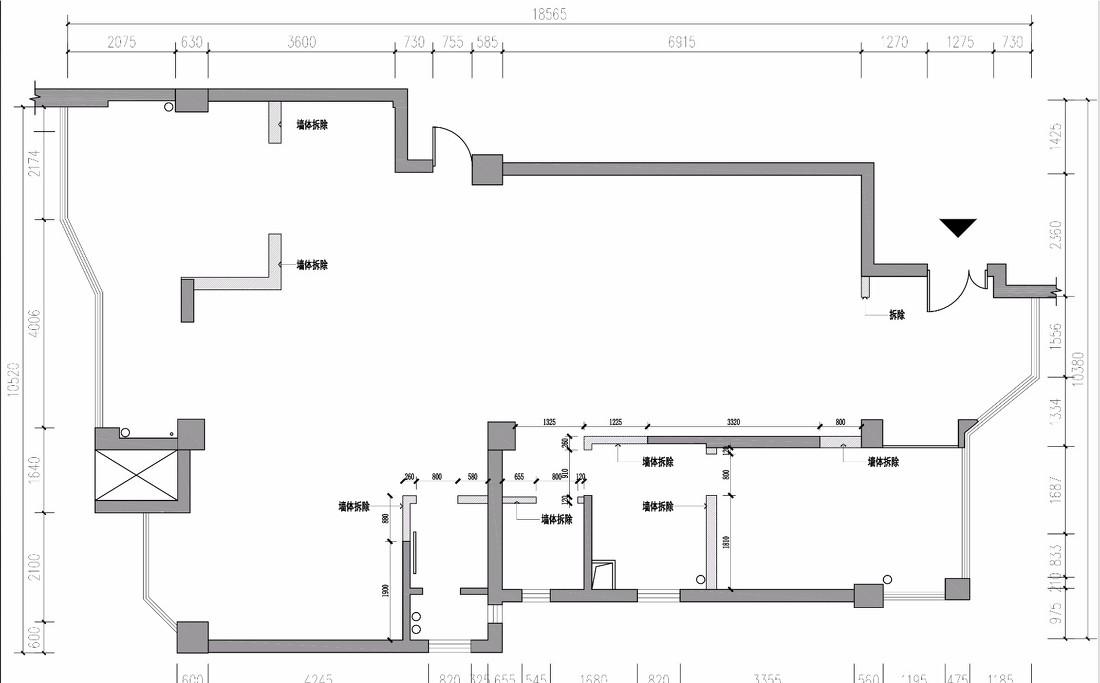
原建筑布局图及拆墙图
定稿平面布局图
设计思路:首先原建筑设计的厨房很小,厨房餐厅及客厅三者之间关系不合理。所以我们将原餐厅位置改为灵活机动的榻榻米客房且扩大厨房面积,餐厅与客厅结合在一个大空间,但新设餐厅位置与公卫成正对的关系,且厨房门也经过公卫,这是非常大的忌讳。公所周知改卫生间位置会大大增加装修成本,所以如何解决这个问题成为本案涉及难点。我们的解决办法是在公卫、厨房、客厅三者之间划出一块缓冲空间并在餐厅方向设立灰色玻璃隔断,压缩了一点厨房入口的面积,但完美决绝了上述问题。
其次该小区楼梯间和消防通道直接通往住户形成了两个入口,逃生通道基本无用,防火门难看影响美观且位于整个套房的中间位置。但由于安全问题消防门不能封闭,所以我们在中间位置设立了不需要采光的酒窖及储物空间,利用一个密闭空间遮挡防火门,安全实用又美观。
另在主卧位置的选择上,尽量满足又主卫的需求去选择,由于户型限制导致主卧没有阳台。所以我们在主卧衣帽间和次卧阳台之间预留铝合金玻璃门(与铝合金窗一体),解决主卧没有阳台问题的同时,形成了一条新的环形闭合流线
本案所有照片纯手机拍摄,无布景,无美化。
本案为单纯硬装设计,因客户对装饰品有一点的把握(大件家具我们公司参与品控)。所以我们在装饰品进场前进行拍摄,尽量为大家还原硬装部分的设计内容。
沙发为电动功能沙发,是先生自己买的,工作很累,回家确实需要一张舒适的沙发好好休息一下。配色上也可以和黑胡桃色融合
电视背景墙采用电动投影幕布设计,用时放下,不用时收起。背景墙可以提供更好的收纳功能。
玻璃隔断与餐厅之间的关系
主卧风格比较偏向轻奢
厨房操作台面因女主人身高做了相应加高,右侧门为超窄边框铝合金玻璃门
客服
消息
收藏
下载
最近

























