查看完整案例


收藏

下载
◈通过家具的组合和颜色的搭配,一样能出效果,做到真正的轻装修重装饰;
◈利用进门左手边的空间,做一组物品柜+展示柜再合适不过了;
◈开放的展示柜放上几件喜欢的工艺品,太有雅致;
◈通透的客厅,乳白色的墙面,木色的家具,暖色地板,整洁而又温馨,简简单单,轻轻松松;
◈电视柜+餐边柜的组合是永恒的经典,电视直接落在电视柜上,直接简单;
◈木色传达的是温馨和温暖;
◈一字沙发、落地台灯、乳白色的墙面,素色石膏线,简单的几何构造体就可以了;
◈填充记忆棉的布艺沙发,很舒服的,主要是不焐屁屁,哈哈哈!
◈遥望窗外,视线开阔,心情舒畅;
◈组合体的餐桌可以根据需要,自由组合就可以了,不受约束;
◈边柜储物功能也不可少,
◈三联动推拉门既能起到对封闭式厨房的需要,又有开放式厨房的通透,
◈整洁干净的厨房;
◈木色衣柜+木色床+木色床头柜+木门+木地板,在白墙的衬托下,温馨自然,精神放松;
◈奶系卧室
◈冬日的光线照在床上,懒洋洋、舒舒服服;
◈干净、温馨
◈鱼线吊灯配上一副背景画,这是设计师用得最多也是最熟练的搭配手法之一,称之为“不对称美”
◈储物柜、书柜、工作台形成组合体,好看实用又方便以后的拆卸与组装;
◈一层纱帘半遮半掩窗外的风景,另一层土黄色的厚帘配色与全屋遥相呼应;
◈贴墙悬挂一字工作台,干净整洁,一点多余的零碎都没有;
◈斑点蓝的干支花瓶,不得不说活跃了整个空间;
◈钢化长虹艺术玻璃作为屏风,与鞋柜形成绝佳的组合;
◈鞋柜一半落地一半悬空,小巧灵能,当然储物功能欠佳,大量的鞋及外衣还是要放在对面的物品柜里;
◈进门的过道虽然对卫生间的门口,但也没有像传说中的那么不忌讳风水,进门视线反而因为对着卫生间的窗户而格外开阔通透;
◈一副挂画点缀了整个空间;
◈开门显通透,窄边的木门让本身精致的空间显得更利落;
◈关门显整洁,窄边的木门让本身精致的空间显得更利落;
◈卫生间的感觉很舒服,通顶镜面、壁龛、下沉大台盆都是生活向往,马桶区域用玻璃隔断分开,形成半独立半不独立的空间;
◈墙面300*600mm浅灰墙砖,白色大理石洗手台面+木纹台盆柜,地面铺六边形深灰地砖;
◈一株室内绿植净化了空间也净化了心灵;
◈内踢脚线的好处就是不再为物体不能贴墙发愁了,落地台灯既是装饰又是必要辅助灯光的附属品;
▲原始结构图
◈房子坐标北京大兴南五环外瑞福园,两居户型,精装新房交付标准;
◈室内南北通透,光线充足,每个空间都有独立窗户,层高2.6米;
◈内部空间比例协调;
◈南北交接处有过梁;
◈暖气温度充足,
◈客餐厅一体。
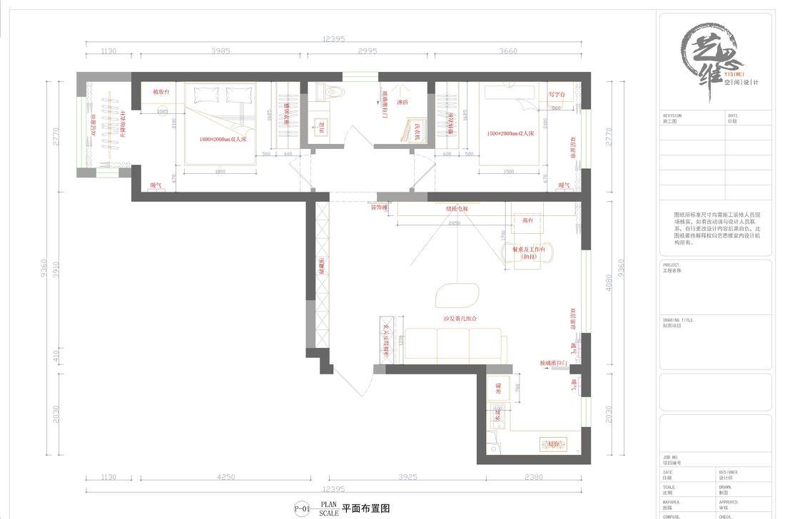
▲平面布置图
◈入户门改为外开;
◈进门左边的空间有40cm的深度,正好可以设计一整面的物品柜+手办展示柜;
◈餐桌采用餐边柜+组合餐桌的形式呈现;
◈家具颜色以木色与浅灰混搭;
◈客餐厅一体;
◈定制家具基本以到顶为主;
◈整体动线以客厅为汇集点,往四周延展。
◈色彩运用的8:1:1配比手法,以暖色调为主冷色调为辅。
客服
消息
收藏
下载
最近




































