查看完整案例


收藏

下载
白色为主,灰色为辅,木色点缀,构成了整个空间的色彩关系,配搭无主灯的设计,整体感清清爽爽干净明了,改重的重改浅的浅,一点多余的繁琐也没有,让人整个身心放空,让忙碌的身体完全迷失,沉寂了一整天的气息,又渐渐苏醒过来,泡一杯咖啡,在明净的空间里享受惬意。
客厅、投影、地砖、沙发、装饰画、无主灯
墙面柜里的木色起到打破肃静的空间氛围,投影在需要的时候放下来,不需要的时候隐藏看不见,沙发也是很舒适的,没有太多的繁琐构造。 客厅、投影、地砖、沙发、装饰画、无主灯、中央空调
墙面柜里的木色起到打破肃静的空间氛围,投影在需要的时候放下来,不需要的时候隐藏看不见,沙发也是很舒适的,没有太多的繁琐构造。 客厅、投影、地砖、沙发、装饰画、无主灯、中央空调
大圆套小圆的造型装饰挂件表面的条纹与背景墙想呼应,立体视觉超强。 #客厅#地毯#装饰画#沙发#挂件#无主灯#
美观有实用的餐边柜。
餐厅、餐桌、地砖、餐边柜、无主灯
餐桌的造型和颜色也是为了和整个空间相融合而精心搭配的,餐边柜的形式又和客厅的墙面柜相呼应,墙上的木质挂画拉平了左右空间的户型关系。
餐厅、餐桌、地砖、餐边柜、装饰画、无主灯
这一套餐桌椅是专门找的南方厂家按照设计图1:1定制而成,墙上的挂画淘宝上选的,餐厅灯也是。
餐厅、餐桌、地砖、餐厅灯、装饰画、无主灯
木色的装饰画让灰色的墙面瞬间了温度。 #餐厅#餐桌#地砖#餐厅灯#装饰画#无主灯#
厨房的颜色以黑白为主色调,灰色为过度色,空间构造简单整洁,易打扫。
厨房、橱柜、烤箱、无主灯
黑白灰的厨房好有腔调。
厨房、橱柜、烤箱、无主灯
主卧的背景特意设计成外延伸形式的一字护墙板,这样就不用在墙上留床头灯的位置,保证了墙面的完整性,而且这种一字板内部发散出来的光是很柔和的,上面的平台也是可以放很多随手的物件,美观又适用,背景墙的乳黄色让整个素雅的房间有温度感。
主卧、双人床、挂画、梳妆台、无主灯
大衣柜与梳妆进行组合,让空间不呆板。
主卧、双人床、挂画、梳妆台、无主灯
别小看这么一副装饰画,足够起到画龙点睛。
主卧、双人床、挂画、梳妆台、无主灯
装饰画可谓是所有需要提亮部分的首选。 #主卧#双人床#挂画#梳妆台#无主灯#
浅蓝色+浅绿色构成了儿童房的空间色,多样化的组合书桌、柜让空间生动活泼。
儿童房、儿童床、书柜、书桌、无主灯
空间的灵动性,往往大部分都是通过一些小点缀堆积而成,不一定非得大面积大手笔处理。 #儿童房#儿童床#书柜#书桌#无主灯#
竖条背景让空间立体更强。
儿童房、儿童床、床头柜、无主灯
进门的鞋帽柜做成上下两层的结构,方便放随手的物件,靠近门口的一组为通顶构造,方便挂长衣物等物品,换鞋区的顶上加了一组灯光,既是为了方便也是为了起到氛围光作用,对面墙还设计了一面穿衣镜。玄关、鞋帽柜、地砖、穿衣镜、无主灯
小过道连接这整个家的幸福,步入家的温馨从这条小过道踏入。
餐边柜、地砖、吊顶、墙面柜、挂件、无主灯
卫生间是全屋最有情调的地方,很多时候人除了客厅、卧室,在卫生间是待得最多的地方,梳妆、摆拍都在这里。
卫生间、干湿分离、防水柜、洗手台
绿植和绿墙拉开了整个空间感,也建立了相互联系。 #卫生间#干湿分离#绿植#小白砖
沙发的质感很舒服,半弧形的转角符合转角空间的过渡和衔接。 #沙发#地毯#装饰画
墙边的五斗柜通常被列为最实用的居家家具之一。 #强边柜#五斗柜#摆件
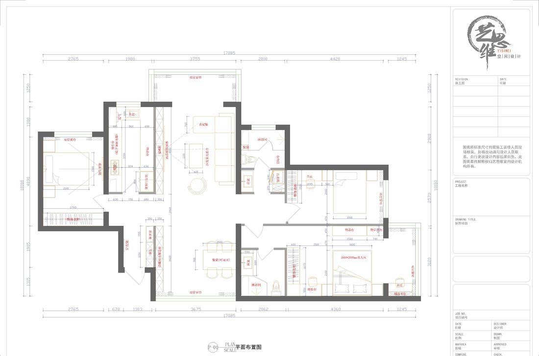
原始的内部空间个房间比例还比较协调,局部做微调即可,客餐厅的空间挺大,考虑储物空间的利用,进门的鞋冒柜很重要,卧室卫生间的门要做风水忌讳的调整,次卫考虑干湿分离,整体的颜色搭配考虑采用7:2:1的配比.
户型图
改造后的平面布局图以客餐厅为中心分为左右两部分,左边是老人房靠近厨房,右边是夫妻房加儿童房,中间为全屋的集中地,主卧卫生间门的方向调整90度,避开对床的形式,然后增加以整排的衣柜,加大储物,次卫做成干湿分离,洗衣机放在次卫方便实用。色彩以灰色、乳黄为主色系。 #平面布置图,
动线,功能分区
客服
消息
收藏
下载
最近


























