查看完整案例


收藏

下载
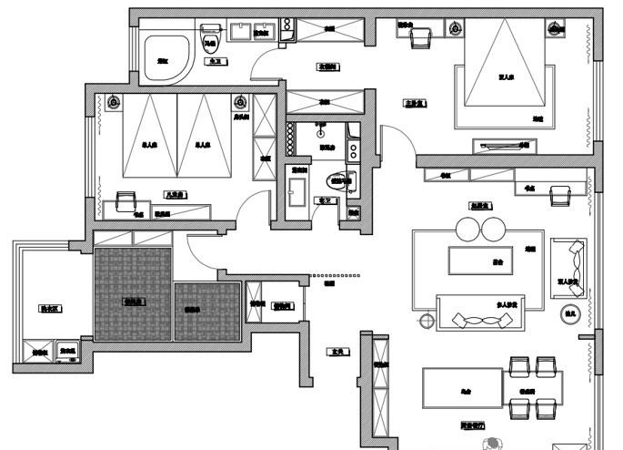
客厅采用无主灯设计,利用点光源,让光线分布更加均匀,避免了使用主灯带来的局促感,营造出低调内敛的空间气质
客厅采用无主灯设计,利用点光源,让光线分布更加均匀,避免了使用主灯带来的局促感,营造出低调内敛的空间气质
打破传统意义上的客厅功能,结合实际需求,将起居室做成多功能的活动 空间,办公,休息,喝茶等功能。
将原来餐厅厨房空间各自独立的小空间,整合为一体,餐桌岛台一体式,
厨房一字型的流水线操作,增加餐厅的储物功能。
将原来餐厅厨房空间各自独立的小空间,整合为一体,餐桌岛台一体式,
厨房一字型的流水线操作,增加餐厅的储物功能。
以舒适实用为主,兼具梳妆台,电视等功能,结合喜好做风格上的搭配。
客服
消息
收藏
下载
最近


















