查看完整案例

收藏

下载
改造动图
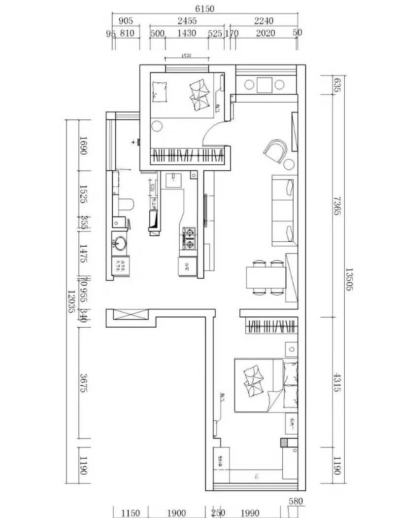
厨房卫生间空间打乱重新排布,厨房还在原有的厨房区域内既第一个厨房拐角过道,卫生间洗漱区还在原来卫生间区域内并与厨房面对面形成一个大的开放式厨房和卫生间干区,活动空间相互使用,既不浪费空间又使得整个空间看起来更加通透,将厨房原来的第二及第三个拐角做成了卫生间如厕区和淋浴区,这样卫生间就形成了三分离,只不过燃气热水器就要放置在卫生间如厕区域了,为了让其更近的向窗外排放废气。
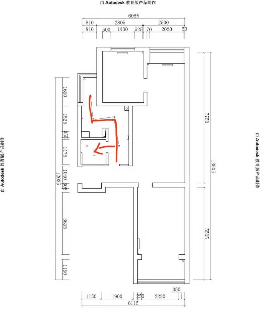
原始结构平面图,厨房有三个拐角祖成(包括一个狭窄的阳台,之前就放进去一个冰箱),进卫生间需要先进入厨房。
改造后的平面布局图,最大的改造就是厨房卫生间,卫生间改为三分离,既洗漱区、如厕区和淋浴区,厨房改为开放式,与洗漱区面对面排布,加上门厅过道的公共空间区域,使得空间并不大的厨房空间更加宽敞和操作方便,电器集中在厨卫的公共开放区域,方便使用。
整体风格是时下比较受年轻人喜欢的原木质感的北欧风,为了弱化客厅飘窗,加了一步踏步,用地板或者木饰面铺装使其变为一个休闲区域,旁边的书架区域为阅读区,这样整个一个大客厅就分为了餐厅区、客厅区和阅读休闲区(将来也可能会是小朋友的学习玩耍区)。
主卧的布置比较简单,阳台利用起来增加储物空间,同时兼顾办公和休闲。
全放草图模型
全放草图模型
厨房卫生间的格局分布草图
厨房卫生间的格局分布草图
客服
消息
收藏
下载
最近












