知末
知末
创作上传
VIP
收藏下载
登录 | 注册有礼

北京小米智能家居体验中心丨中国北京

2022/07/09 00:00:00
查看完整案例
微信扫一扫
收藏
下载
北京小米智能家居体验中心丨中国北京-0
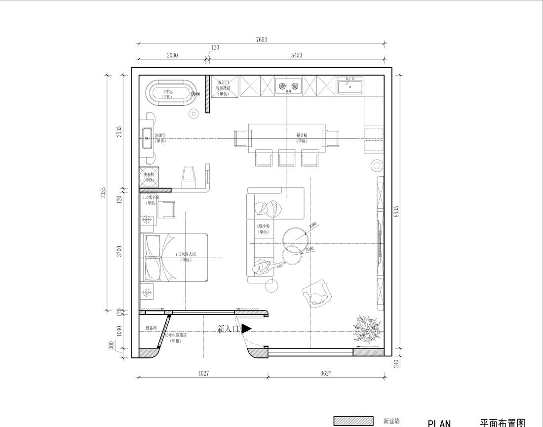
平面布置图
北京小米智能家居体验中心丨中国北京-2
展厅外观
北京小米智能家居体验中心丨中国北京-4
展厅外观
北京小米智能家居体验中心丨中国北京-6
展厅内部设计
北京小米智能家居体验中心丨中国北京-8
北京小米智能家居体验中心丨中国北京-9
北京小米智能家居体验中心丨中国北京-10
北京小米智能家居体验中心丨中国北京-11
北京小米智能家居体验中心丨中国北京-12
南京喵熊网络科技有限公司 苏ICP备18050492号-4知末 © 2018—2020 . All photos and trademark graphics are copyrighted by their owners.增值电信业务经营许可证(ICP)苏B2-20201444苏公网安备 32011302321234号
客服
消息
收藏
下载
最近