查看完整案例


收藏

下载
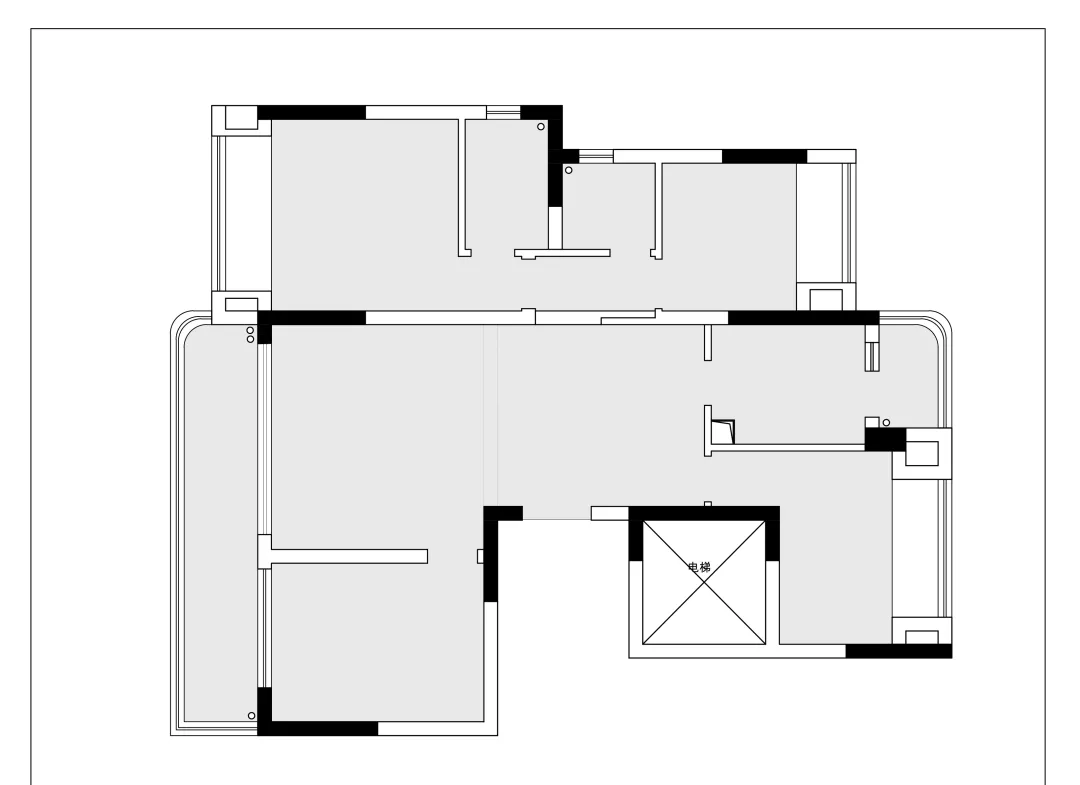
户型解析:
①餐厅采光不佳,只能依靠客厅的局部采光。
②两个卫生间空间偏小。
③其中两个卧室空间偏小。
优化方案:
✔原户型是四室一厅,因业主需求,将空间整体进行重组:因业主父母偶尔过来小住,故保留了两间卧室;保留一间房作为游戏房,平时休闲、放松。
✔厨房与餐厅融合做成开放式厨房,空间更通透。
✔邻近客厅的一间卧室与客厅打通,扩大客厅空间的整体视觉,并做了一个开放书房,满足平时看书休闲的功能。
✔原本结构的主卫和客卫无法做干湿分离,空间从新分配后卫生间舒适度更好。
以黑白灰为主,亮眼的棕色点缀,打破空间的沉闷感,还增添了一丝复古的feel。局部点缀少许金属元素,没有过多的装饰,遵从少即是多的原则,简单,足矣。
电视墙采用木质、石材与金属搭配,雅致之下,带给人平和宁静之感。家居陈列简单而有设计感,客厅空间宽敞而富有高级感。
现代的线条感为主,辅以弧形线条和直线线条,勾勒出极简的艺术感,棱角分明的空间尽显干净利落。打通后的空间,客厅更通透明亮,完美!
餐厅空间用了两处弧形设计手法,让整个空间更具包裹性,揉合了玻璃、金属、与石材背景墙,深浅色系与地面冷暖材质的搭配,细腻的细节安排下,烘托一片渐层视感的美学风采,同时兼具实用性。
主卧采用了隐形门的设计手法,整体感相呼应
主卧沿用经典的黑白灰,嵌入式床头背景墙采用木质元素很有质感,也丰富了空间的层次感。环形吊灯是整个空间的点睛之笔,现代感十足。
客服
消息
收藏
下载
最近










