查看完整案例


收藏

下载
客厅装修设计中,硬装造型在于一个“简”字。软装搭配在于原味+现代。电视墙造型至简,红砖托底,白墙在上。平整的吊顶,让客厅空间十分通透。家具搭配,几件木质家具画龙点睛,朴实清新的原始材质让居者视觉享受珥本装修风格带来的简洁温婉。
设计师善用空间角落,在楼梯边上做出了一个宽敞的用餐环境。墙体使用白色乳胶漆做出最简单的效果,用带些温黄色的地砖去突出空间的饱满和色彩。
设计师善用空间角落,在楼梯边上做出了一个宽敞的用餐环境。墙体使用白色乳胶漆做出最简单的效果,用带些温黄色的地砖去突出空间的饱满和色彩。
厨房的收纳性是设计师重点考量的问题,作为开放式厨房,各种厨房用具如果不能整齐有序,那么开放式厨房的通透带来的不是大厨房,而是脏厨房。
空间设置恰当,采光充足,用质感的木雕、木椅打造珥本风现代中性的温婉。
造型简单,墙体素净,整体设计还原户型优点,保证空间的原始整体感,不被分割。
造型简单,墙体素净,整体设计还原户型优点,保证空间的原始整体感,不被分割。
珥本设计是现代生活主义的延伸的装修风格,空间內外层次及视觉相当有清透感,软装搭配往往会借鉴北欧装修风格的特色。
珥本设计是现代生活主义的延伸的装修风格,空间內外层次及视觉相当有清透感,软装搭配往往会借鉴北欧装修风格的特色。
珥本设计是现代生活主义的延伸的装修风格,空间內外层次及视觉相当有清透感,软装搭配往往会借鉴北欧装修风格的特色。
珥本设计是现代生活主义的延伸的装修风格,空间內外层次及视觉相当有清透感,软装搭配往往会借鉴北欧装修风格的特色。
2楼平面规划图
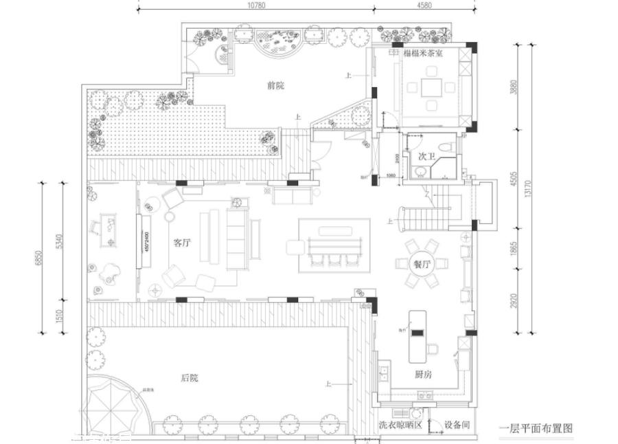
1楼平面规划图
客服
消息
收藏
下载
最近















