知末
知末
创作上传
VIP
收藏下载
登录 | 注册有礼
知末案例   /   商业空间   /   宠物店

栖息·PERBARBAR MDE 空间设计

2018/11/21 00:00:00
查看完整案例
微信扫一扫
收藏
下载
栖息·PERBARBAR MDE 空间设计-0
栖息·PERBARBAR MDE 空间设计-1
前台效果图-01
栖息·PERBARBAR MDE 空间设计-3
前台效果图-02
栖息·PERBARBAR MDE 空间设计-5
前台现场图:
现代感的家居配饰。黑白对比强烈的色调,彰显时尚风格。
栖息·PERBARBAR MDE 空间设计-8
栖息·PERBARBAR MDE 空间设计-9
栖息·PERBARBAR MDE 空间设计-10
栖息·PERBARBAR MDE 空间设计-11
栖息·PERBARBAR MDE 空间设计-12
饶富趣味回忆的黑板、背景墙,演绎别样艺术气息。
栖息·PERBARBAR MDE 空间设计-14
栖息·PERBARBAR MDE 空间设计-15
栖息·PERBARBAR MDE 空间设计-16
栖息·PERBARBAR MDE 空间设计-17
楼梯间:
水泥板墙面与外露的管道想胡勇搭配极简设计风灯饰将工业风展现极致。
栖息·PERBARBAR MDE 空间设计-20
栖息·PERBARBAR MDE 空间设计-21
栖息·PERBARBAR MDE 空间设计-22
栖息·PERBARBAR MDE 空间设计-23
栖息·PERBARBAR MDE 空间设计-24
栖息·PERBARBAR MDE 空间设计-25
栖息·PERBARBAR MDE 空间设计-26
二层宠物寄养区:
规律的纹理,黑白灰的色调,营造气氛别致的宠物寄养区域。
栖息·PERBARBAR MDE 空间设计-29
栖息·PERBARBAR MDE 空间设计-30
卫生间
栖息·PERBARBAR MDE 空间设计-32
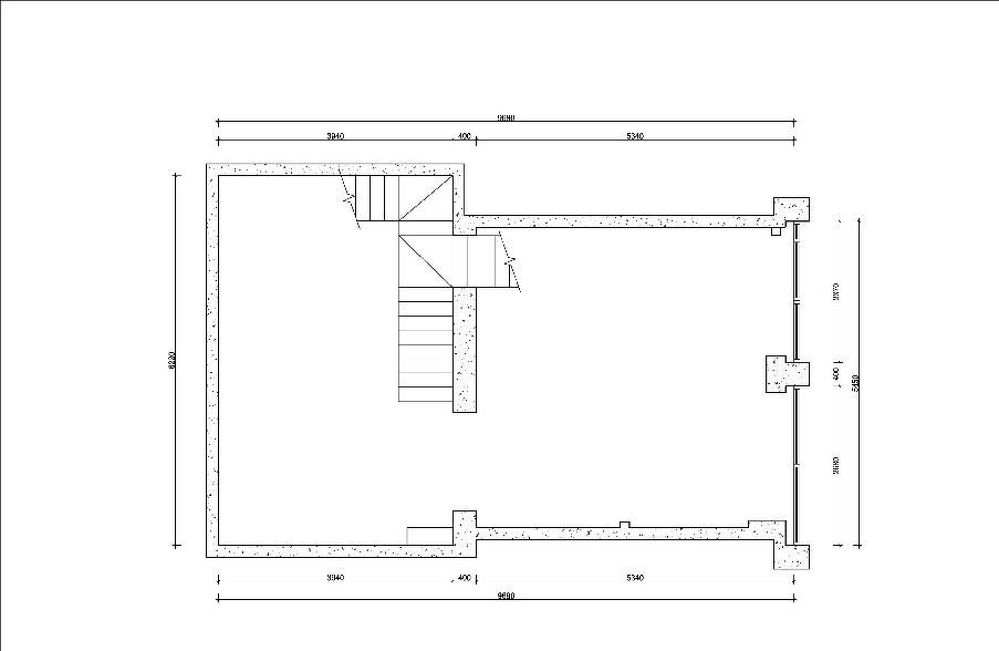
户型图
栖息·PERBARBAR MDE 空间设计-34
栖息·PERBARBAR MDE 空间设计-35
南京喵熊网络科技有限公司 苏ICP备18050492号-4知末 © 2018—2020 . All photos and trademark graphics are copyrighted by their owners.增值电信业务经营许可证(ICP)苏B2-20201444苏公网安备 32011302321234号
客服
消息
收藏
下载
最近