查看完整案例


收藏

下载
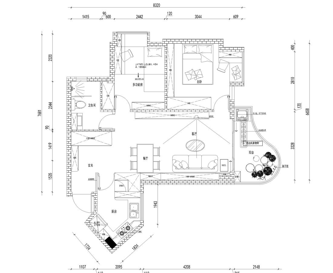
78方两室一厅的住宅要住一家三口加两位老人,听起来视乎不是太为难,然而屋主希望能再增加一间可以弹性利用的空间,此外儿童房还想规划书桌。
改造破解难点:
问题1:收纳功能严重不足,家里形似杂物间,须重新规划,并同时兼顾面积和收纳功能。
问题2:儿童房没有自己学习的空间及与两个老人同睡一张床多年。
问题3:主卧被书柜及衣柜夹得满满当当,连下脚地都没有,须重新梳理规划。
问题4:厨房空间收纳不足,尤其食物干货无法妥善收纳,让屋主格外烦恼。
房子高度只有2.7m,做不了夹层的设计,而是选择“打开”,让儿童房以及客厅创造更多的储物空间,充分满足屋主的需求。
功能设计关键点1:充分利用空间高度,巧妙规划收纳空间,增加公共区域的开阔感。
在尽可能保有平面活动范围的前提下,将收纳功能往垂直方向延申,利用沙发背面挑高区域设计大量柜子,满足屋主大量书籍及物品的收纳需求。
功能设计关键点2:原住宅一进门鞋柜紧靠着餐桌,改造后把玄关让出来增加大件物品的收纳柜。
功能设计关键点3:开放设计赋予开阔视野,住宅位于高层27楼北向,拆除客厅与阳台隔断,改建隔断窗建于阳台围栏,赋予空间开阔视野。
功能设计关键点4:沙发背景的储物柜延续正面墙,餐边柜也隐藏在餐桌旁,充分满足屋主食物及干货药品的收纳。
功能设计关键点5:把书房移至客厅后,利用飘窗台的主卧室能打造出一张书桌及梳妆一体的功能区,满足各种生活功能需求。
功能设计关键点6:儿童房的空间十分狭小,充分利用了飘窗,展开出一个儿童书房区,挑高错层的儿童床,以及抽拉式的床,给老人陪伴孩子,造出一个书房儿童房老人客房,三房功能一体的复合式空间。
抽拉式的床
增加满足孩子的收纳书柜及衣柜
功能设计关键点7:重新梳理厨房的动线,增加橱柜的收纳量
功能设计关键点8:拉长原本的卫浴空间,满足基本干湿分离的使用功能,争取出的空间留给玄关储物、过道空间。
每个人想要的生活都不一样,但如果有一颗知足的心,便能在平凡生活中都能活出属于自己的精彩。
我们用知竹(足)的心,过随遇而安的生活。
客服
消息
收藏
下载
最近

















