查看完整案例


收藏

下载
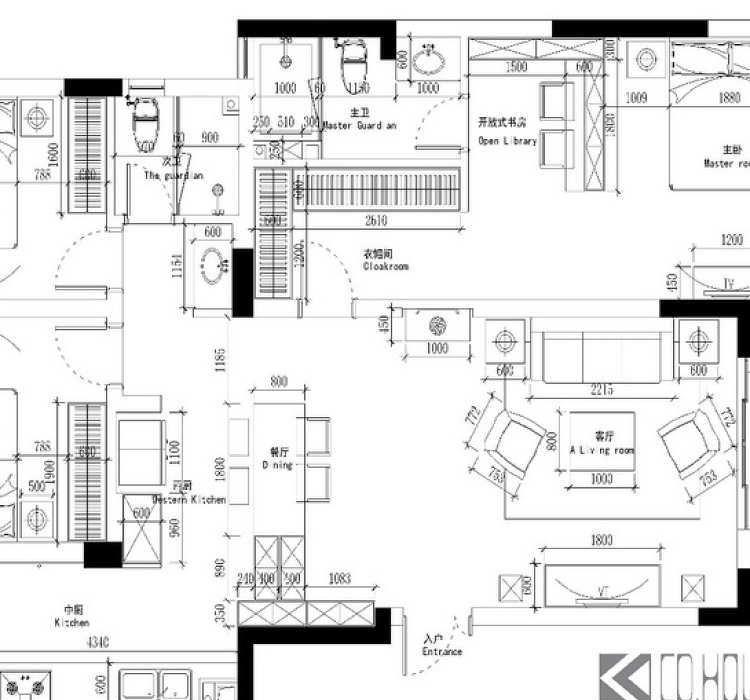
原始结构图
平面布置图
客厅展示
随着社会的发展,经济的快速增涨,以及装修风格的多样化,越来越多的人在家居设计中倾向于美式装饰风格,于他们而言美式装修设计风格不仅是一种装修风格,也是美国人自由,舒适生活的代表,更是现代人向往和追求的生活方式。
户型一进门就是看客厅与餐厅两个区域的,估计现在KFS的房子大多都是这种格局,原始的户型是进大门就面对主卧室的门,所以设计师很巧妙的做了修改,将主卧室的门洞封了,做了一个玄关墙,这个角度真的是美到炸。
客厅一样是在带有线条的现代美式的风格下,采用了3+1+1的沙发组合,三人位的美式皮沙发搭配两张单人的布艺单椅,皮沙发的沉稳配上单椅的休闲,加上优雅的欧式茶几与电视柜作为主力。皮沙发两边,一边依然选择美式风格的圆桌作为边几,另一边则采用植物作为搭配,填补了两边的空白,但又不会显得太拥挤。
餐厅的部分是结合了餐边柜与餐桌的结合,这边的搭配其实并不是很多,主要还是餐桌与餐椅的款式与风格,以及灯具的选择与搭配,原则就是想简单与和谐就好。
由于和客厅、饭厅之间没有隔断,因此开放式厨房设计时风格一定要和家装整体风格保持一致,这是开放式厨房装修设计要点。如果风格不统一,就会影响整个家装的风格出现缺漏。在选择厨具和进行布局时都要考虑客厅和饭厅的风格。
主卧充满浓郁的浪漫气息,房屋的结构和布局上很明显的强调了轴线的对称,使得整个空间有一股强烈的富贵气质,高雅奢华,在软装上窗帘跟吊灯是一大亮点,都是以浪漫小法式为主
儿童的房间在装修和设计方面首要的是确保安全性。在选用装修建材时一定要选用环保性能更好,能保证家居环境安全的产品。家具、布艺装饰等也不要忽视其环保指标。关于儿童房的装饰色调,设计师表示,在儿童房的美化和装饰中,不推荐使用浓重色彩的壁纸和彩绘,因为强烈的色彩容易造成儿童莫名的烦躁情绪。儿童房主要采用品质有保证的乳胶漆,以床头墙充满活力的绿色营造舒适、温馨的感觉。
老年人都喜欢安静,最基本的要求是门窗、室内墙壁隔音效果好,不受外界影响。因为根据老年人的身体特点。即使是有些音量较小的音乐,对一些老年人来说也是“噪音”。所以一定要防止噪音的干扰,否则会造成不良后果。从科学的角度看,色彩与光、热的谐调和统一,能给老年人增添生活乐趣,令人身心愉悦,有利于消除疲劳、带来活力。
家里的卫生间都是使用的干湿分区,卫生间淋浴区在冲凉后容易地面都是湿漉漉的,如果整个卫生间都是这样的话,在里面活动就很湿滑危险了(尤其是老人小孩),而干湿分离后把湿滑区域限制在淋浴区内,就大大提升了卫生间的安全性能。而且卫生间,在经常潮湿的条件下,往往会滋生很多细菌,很不卫生;在做了干湿分离的基础下,可以把这个不卫生区域限制在淋浴区,避免卫生间的其他日常活动区域也不卫生。有了干湿分离,卫生间干区可以避免湿气侵袭,让卫生间里的柜子、五金配饰等更加耐用。
细节展示
客服
消息
收藏
下载
最近



















































