查看完整案例


收藏

下载
原来的客厅和餐厅相对独立,只有一个梯级联系,客厅感觉很小,新方案我们把餐厅厨房跟客厅的墙打掉,还把厨房和餐厅位置调换,整个客餐厅的空间感就出来了,原来光线不足也得到改善。
沙发墙与餐厅同时做了收纳柜餐边柜的整体设计,空间整齐不凌乱。
原餐厅下来客厅是一个小梯级,现在把梯级延伸到了走廊这边,跃式布局缺点变成了优点,满满的设计感。
量房照片。
本来只打算挂一个大电视的,后来为了增加收纳又不影响美观就做了整版哑白色的电视柜。
在有限的面积上尽量利用空间,在满足餐边柜功能以外又在美观下中间了收纳功能,餐厅厨房中间原来是烟道,现在利用柜子巧妙的把烟道藏起来。
量房照片。
客厅长向尺寸足够,很适合挂大电视。
新的餐厅跟厨房中间做了一个吧台,女主在厨房做大菜的时候还可以跟男业主很好的互动。
时尚好用的餐边柜。
原来的走廊尽头房间门直对着入户门,经过调整看不到房间门还变成了一个艺术展示。
U字型的厨房,操作台比原来的厨房多了有3米。
在这样的厨房做菜太好啦。
主卧。
主卧原来有一个阳台,做了外扩封断桥铝的处理。
经过户型调整,在床尾做了整排的衣柜,加上入门的一个衣柜,主卧衣柜的面积大大超出了业主的想象。
利用阳台做的通长书台,超级好用,两夫妻一起做事都够用了。
主卫是通过走廊移位布局调整好不容易留出来的。
小小的面积做了长条的洗手台,可以放下更多护肤产品和小电器。
瓷砖用了纯色系的大规格砖,600*1200的铺贴效果,墙面的整体感很强烈。
长辈房。
通过新的布局,长辈房变得容易做软装和家具摆设,比原来也好用多了。
儿童房没有做榻榻米,采用了不带靠背的床箱设计,只比床垫大一点点,没有占用空间,床尾还有空间取拿衣服。
床后是整排的书柜收纳柜,可以满足小朋友成长的各种收纳需要。
公卫跟主卫统一风格,都是用大规格瓷砖显得空间干净整齐,还显大。
利用后面主卧的墙体做了业主希望的壁挂马桶。
原始平面。
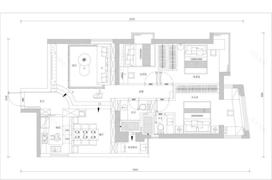
新的平面布局。
客服
消息
收藏
下载
最近




































