查看完整案例


收藏

下载
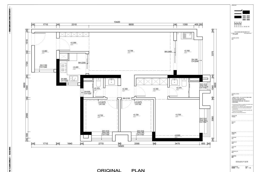
△ 原始结构图
原始结构痛点:
1、各个空间较为独立,没有连贯性;
2、走廊很多,动线不合理;
3、原始厨房空间较小,内部隔断较为鸡肋;
4、整个空间视野较为局促;
5、没有足够的收纳空间;
6、主人房、主卫实用性不强;
本案是广钢新城的新楼盘,精装修交付;
屋主为一对新婚夫妻,还有个叫“胖胖”的柴犬,对于新家,想要容纳无限个可能;
所以整理了以下需求:
保留主卧,次卧;
有个书房;
有个宽敞实用的厨房;
有个水吧区可以做简餐;
保留两个卫生间:公卫洗手台外置,主卫想要有个浴缸;
有个地台做休闲区,洗衣区...
有足够的收纳空间,还要有部分可展示手办的区域;
整体风格为日式原木,部分区域希望有不同元素混搭;
温馨通透明亮,部分区域也希望有亮色点缀;
屋主说:因为是精装交付,整体并不想“大动干戈”,只想局部改造焕“新家”。
△ 我们根据客户需求进行了调整:
1、开放式厨房
打开厨房,设立吧台区,吧台靠墙的位置设计了一组电器柜供厨房使用,电器柜的背面正好可以放一个502L的西门子冰箱(冰箱尺寸:636X908X1837mm)可供餐厅使用;吧台区又可做厨房的操作区,吧台下的柜子可以收纳一些厨房用具,三者严丝合缝,兼顾功能及收纳;
2、阳台
将原来的阳台推拉门拆除,阳台做了封窗处理,将原有地面抬高150mm,地台两侧分别设计了收纳空间;
3、主人房
将原有的衣帽间拆除做了半墙柜(尺寸2070X600mm)给客厅使用,主人房做了一面到顶的柜子;主卫原有尺寸2500X1540mm更改为1920X1920mm,浴缸区域为1620X850mm,可以放置一个常规尺寸的浴缸;洗漱区为870X550mm,靠近墙的位置设计了壁龛作为收纳;主人房门后的位置利用门洞的宽度设计了1000X550mm的衣柜,可以放置一些过季的衣物;
3、书房
拆除原来的门洞,做了推拉门;书房的另一面做了一面到顶的柜子(尺寸:2550X600mm)兼顾收纳;
4、公卫
原本就是外置洗手台的设计,马桶区及淋浴区没有做改动,只是拆除了洗手台另一侧900mm以上的墙体做了半墙处理;
弧形造型的门洞的设计让空间有了视觉上的延伸,玄关采用了绿色作为基调,搭配复古花砖,让人眼前一亮;右侧靠窗的区域设置洗烘一体作为生活阳台,兼具洗衣家政清洁功能。
为了弥补原有厨房储物空间不足,由原来L型的操作变为U型的操作台面,联通餐桌空间,增加了趣味性。同时作为厨房的补充空间,兼并了收纳功能同时,也增加了电器柜的位置;
电视背景墙用烤漆木栅格作为主角,搭配仿石材台面,质朴温润;灯光的交错,给予客厅足够的氛围感;
在沙发背景墙规划了一排矮柜用作收纳;两者互相联系却又彼此独立,素雅配色,简单布局,勾勒出休闲、松弛、舒适的生活轮廓。
保留原来开放商交付的收纳柜,一旁也做了简单的软装配饰作呼应;
原有的主人房衣帽间拆除以后,做的半墙柜体隔断,客厅视野开阔许多,
餐厅看玄关,由于拆除了餐厅与厨房的非承重墙,以吧台的形势进行衔接,打开了餐厅与厨房的视野,拓宽了厨房的使用面积;餐桌椅也是购置了当下最火的悬浮餐桌及藤编元素的椅子;
临近餐桌的一侧,做了水吧的设计,分担了厨房的储物压力;设计师将冰箱规划在水吧的旁边,也更符合现代年轻人的生活方式;
通过装饰画、吊灯打造空间层次递进感;而藤编、金属元素进行点缀,丰富空间,也迎合了日式原木的空间氛围。
水吧区安装轨道插座,无论是在这里简餐、喝茶、冲咖啡都能轻松满足,小细节却能增加生活的幸福感;
洗手台外置,半墙的设计,提升居家生活便捷性的同时又能增强空间的美观性;
将原先阳台与客厅之间的墙体拆除,地面抬高15cm,改造成休闲地台,铺上蒲团和棕榈垫、就是一个茶室;阳台一侧做开放隔,上面可以放一些平时淘回来的小物件;
另一侧布置收纳柜,方便储存茶具、茶器,原本普通的生活阳台,也能变得禅意十足
慵懒的夏日午后,盘腿而坐,泡一杯茶,取一本书,听首舒适的老歌,静静享受时光缓缓流淌的惬意与放松……
床头背景的墙面做pu线搭配木格栅,美观又简约;藕粉+橙色混色,增加空间活力,也提亮整个空间的色调;
书房主要作为屋主的工作间,偶尔会在此办公与学习;书桌的另一侧,采用简洁的暗弹式一门到顶设计,让书房的功能性扩大到极致。
木色与白色的结合,更能让人静下心来,恰到好处的灯光,让整个空间都柔和起来,在这样的环境下处理工作、阅读书籍、品味人生,大抵才能体验到什么叫岁月静好;
从方案图到真正的实景落地完成,业主与设计师高度的配合,不放过任何一个细节的处理,设计从来都你看它,它也在看你。看着实景一点点的落地,业主惊喜的说道,这就是她想要的家。自己也拍了很多照片,喜爱之情,溢于言表。所以,设计师需要把握的不仅是当下业主的居家状态,还有家的未来无限可能。很显然,我们做到了而且出色的完成了。
客服
消息
收藏
下载
最近












































