查看完整案例

收藏

下载
三里屯街道人群熙攘,各类商业空间竞相开放。书屋在北区较为重要的交通路段,经过此处的游客和读者都能直接观看到整个建筑和内部构成。由于改造的周期短,建筑格局并未做太大调整,设计的重心则放在空间的交通优化和视觉调性的提升。为了让读者能更放松、更清晰得享受阅读空间,首先在设计策略上选取较为温和的设计语言去组织展开此次改造。
由于周遭坐落了各类风格的建筑空间,且房子原本有长向的大玻璃窗展示空间,为了让书屋的在靠近主入口的外立面便去繁就简,我们用一个转角的白色墙面和落在地面的护墙板来平衡比例,强化建筑本身干净利落的体貌。
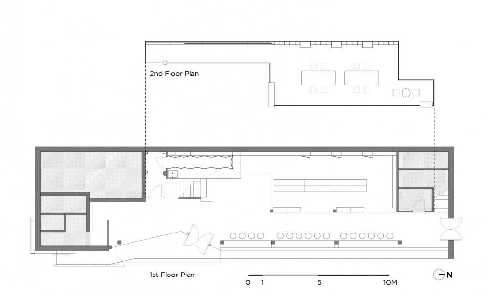
室内空间有足够的挑高,也天然得对功能分区进行了组织规划。首层的设计尽可能满足丰富的艺术类书籍展示和阅览座位。其中,可移动的坐凳和书架设计也为多种讲座、展览、小型演出等活动提供可变的空间模式。
设计师在新店的设计中,延续了前门店的视觉要素,但在此处较为明快的空间内有新的质感呈现。不同比例的书籍陈列贯穿整个阅读空间,同时也引导着读者的即时体验。首层较为密集的陈列和二层的留白设计形成对比,也用此区隔了相应的书籍分类。
二层则主要由精选的杂志品类构成,同样能承载举办展览的功能布局和长向交通流线。主楼梯和吧台的连接在新的空间升级中异常重要,有利于书屋工作人员对外交流和运营管理。比重较大的栏杆设计中,细长条的扁钢阵列焊接,用轻盈的构成减弱楼板的厚重感。
阅读,始终是人们连接世界的方式,此次改造时间匆匆,相信在灯红酒绿的三里屯街区它依然是一个有趣温暖的场所,给每天同样匆匆来此的人群提供慢下来的选择。
△平面图
△立面图
项目名称:春风习习读书会 x 朝阳城市书屋
项目地址:北京朝阳区三里屯街道
委托方:春风习习读书会
设计单位:未来以北工作室
设计团队:金波安 李泓臻 罗霜华
设计时间: 2019.04-2019.05
完工时间: 2019.05
项目面积: 220平米
摄影:未来以北工作室
主要材料: 花岗岩、桦木多层板、不锈钢、PVC编织地毯
主要品牌: 九运地毯瑞兴板材
客服
消息
收藏
下载
最近
































