查看完整案例


收藏

下载
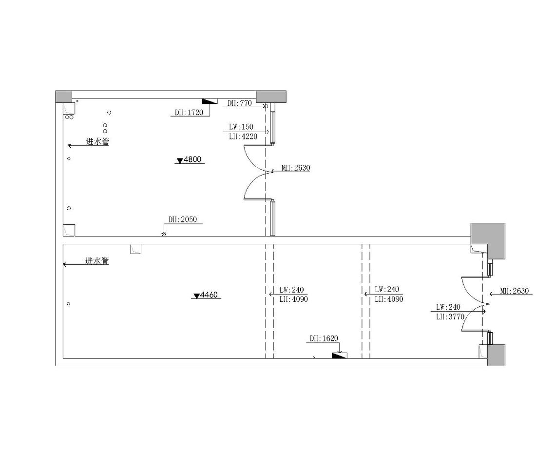
原户型是由两个店面组成,一个细长,一个方正,并且空间单一,过于死板。
在平面图上我们可以看出,将两铺面连接处的墙体完全打通,使空间连接一体。
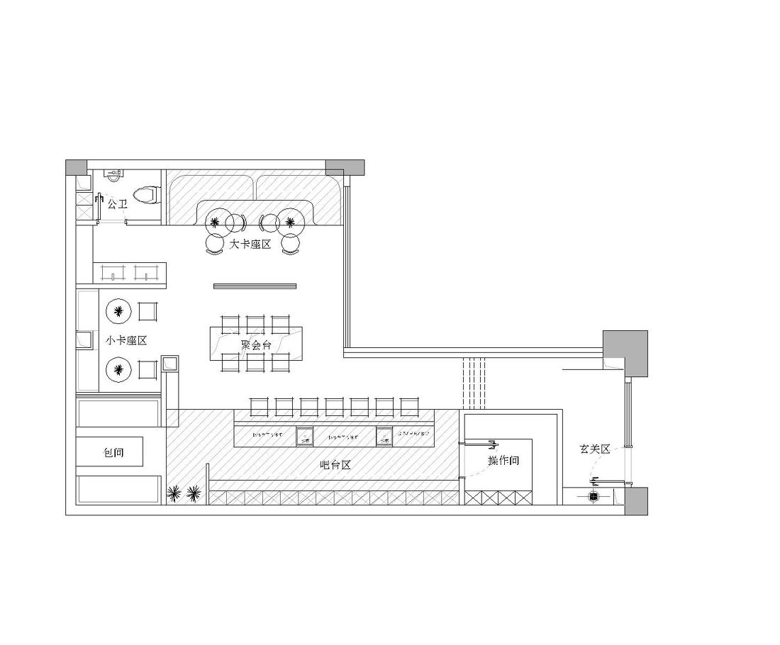
将酒吧很自然的分成了:前厅、长吧台、多人聚会吧台、大卡座区、小卡座区和包间。
酒吧入口
门头设计我们注重于神秘感。
入口不大,行走在街边,人们不难被这神秘而富有情调的店面吸引过去,我们将原有招牌拆除,把门套加装到顶,做了通体黑色3米多高的大门,通过层叠的灯带,带来一种神秘跟未知感。
侧面的墙体,设计师取酒桶的形状,设置洞洞墙造型,在洞洞内部设计了圆形灯带,洞洞里面可以放酒,增加了展示空间并且能够很好的吸引眼球;
在进门处设置形象玄关,更好地向展示客户第一印象;
转角步入的艺术走廊,首先印入眼帘的是一幕线型灯,它们纵横聚合,夹道两侧。
一侧是清水混凝土的洞洞墙,不羁而自由,另一侧是混凝土墙,以灯带分割,光的反射让空间有了通达的视觉效果。让人眼前一亮并饱含期待;
走出回廊,豁然开朗,眼前出现了我们的主吧台。
这里要提一下的就是主吧台的天花,我们用了镜面不锈钢材料,让主吧台背后的酒柜从3米高变成了6米高,空间纵向层次感就凸显出来了。
设计师将所有调酒设备完全隐藏在吧台下方,避免使用吧台后面的柜体,保证整个调酒的过程只在吧台台面呈现。客人可以近距离、沉浸式地观看调制鸡尾酒的全过程。酒保和客人之间因此增加了更有效的交流。温润的木质长吧台、灯光、酒的香气以及调酒师的参与,使得整个调酒的氛围更贴心和私人化。
在主吧台对面,设置了一个大长桌,也就是多人聚会吧台,以供多人聚会使用;
这也就是大型聚会的中心,从中心向三面发散,分别是大卡座区,小卡座区,厕所,和包间;
从这里到每个空间的路上,我们在立面上,做了弧形的墙体造型,空间的横向层次感就出来了,并且空间更活跃能够连接一体。
醒目的圆窗洞,边缘依托灯光形成室内空间中最具精神性的视觉元素。
大卡座区设置有围合状的沙发组,背景则是通顶的开放柜,为酒品展墙,同沙发组一起形成舒适的休憩饮酒区域。
顶部镜面不锈钢材料与整面墙的镜子拓宽了层高,延伸了空间,同时让整个空间增加了更多的迷幻。
整个空间最神秘的最内侧为一间半封闭的卡间,卡间的一侧的墙面设计了一整面的玻璃砖,让空间充满朦胧美,依托灯光形成室内空间中最具神秘感的视觉元素。是室内空间中最高也是最私密的区域。
休闲区是在靠近里侧的位置,意为情侣们和两人客人设置了两对两人座位。
下沉了30公分让空间更加充满神秘感,灯光昏暗,混凝土墙面和地面以及玻璃的砖,吊灯配合着闪闪烁烁,忽暗忽明。
客服
消息
收藏
下载
最近





















