查看完整案例


收藏

下载
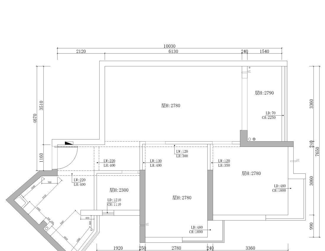
◇ 原始户型图 我们先来细数下原户型存在的问题:
1. 入户正对狭长走廊,宽度约为1.2m。
2. 厨房为异形布局,原布局动线流畅度、功能性不够完美。
3.原卫生间没有做到干湿分离,动线较混乱。
4. 两个卧室通透度不高,舒适性较差。
◆ 平面布置图 对于上面提出的问题,再结合屋主的生活需求,我们做出了以下改动:
1.借用原卫生间0.4㎡面积做了玄关柜,解决进门储物需要;在客卧外侧设置了屏风加成品鞋柜,一是隔断走廊也为改门后的主卧增加私密性,二也做个补充收纳。
2.重新规划、整合厨房提高空间利用率,优化下厨动线。
3. 把卫生间区域的墙体拆除,再度划分内部功能区:外置洗手台分离干湿区,马桶间和淋浴间用玻璃进行二次隔断,并且淋浴区增设一扇门彻底分割功能区。
因为右侧是厨房和卫生间干区所以地面选的是六角砖,而往客餐厅走去就选得木地板了,两种材质的组合视觉上划分了功能区,而且进出进入的门厅用地砖也更好打扫更耐用。
为了达到屋主要求的【清新淡雅】,全屋我们都是以原木色、白色来铺陈,打开门就能感受到清雅的氛围。用一扇高约2400mm的木屏风来进行一个视觉延缓,保护了改造后主卧的私密性。 面积小更要注重物品收纳了!
弱电箱用了洞洞板来遮丑也能做为小物件、摆件的归属地;落地镜搭配顶天鞋柜,有着“小衣帽间”的用途。底部除了留空750mm还特意做了750mm开放格,两者都可以做为“随脚踢”区域,常穿鞋子放在这很方便。
(鞋柜尺寸为1300*300*2380mm)
改造后厨房整体布局呈一个L型,冰箱也让我们容纳来进来,这样的话【做饭】一整个流程都能在6㎡大小的厨房里被完成了。
550mm宽的台面足够屋主料理,餐具、调味料那些统统用挂杆、置物架等上墙收纳,不用占用台面;高低台面的设计更能符合人体工程学,缓解下厨时的腰部压力。
另外,厨房门外不到1平的空间做了卫生间台盆区,有利于卫生间达到干湿分离的状态。
借用了厨房不到1平的大小来完成卫生间的干湿分离,浴室柜+镜柜为干区储物增容,并且把洗漱用品藏在了镜柜里,干净卫生的同时也节省了台面。
湿区内部我们又把马桶区和淋浴区进行了二次分离,再加上双门的设计,卫生间的3大功能被完美分隔。
现在的餐厅在收纳方面,我们利用了长3360mm高2780mm的一组顶天立地柜将储物容量拉满,餐边柜多组合形式的打开更能满足屋主的多样需求。
凹空位置可以成为家中水吧台+咖啡区,其他区域则是不常用小家电、日用品囤货的归属地。餐桌旁还有个斗柜来补充储物,对比改造前收纳容量是大幅度增加~
餐厅还是延续玄关、厨房的配色搭配,大面积的木色和白色很能给人清爽的感觉,小清新范十足!
首先纳入阳台扩大视觉面积,也引入光线改善室内采光和通透度。为了缓解通用木色的疲劳,客厅这里我们选择将木色做为点缀色,用40mm木线条来装饰墙面。
日式调装饰画配矮脚浅灰沙发,轻松拿捏住日式风~
电视墙还是偏实用型的,定制的电视矮柜,除了放下电视还能够进行一些杂物收纳。
左侧阳台就变成休息区,日后有了孩子也能成为亲子区、或是摆放孩子的钢琴乐器。
阳台的右侧做成了生活阳台的一个功用。
高度约达2.8m的立柜不仅容下洗烘机,还有个台盆区和储物空间。无把手的设计让整个柜体立面看上去十分清爽,也少了会磕碰的风险。
飘窗的位置改为休闲区域,还加了屋主需要的办公区域,把收纳区挪到了床尾。这样一来,卧室的动线就会更为流畅,空间利用也更为完整、实用。
次卧的话,主要功能除了屋主父母来时做为休息的地方,平常时候还是当成储物室,所以从我们直接定制了1.5m长的榻榻米床,床尾还做了高2.8m左右的衣柜,收纳容量绝赞!
客服
消息
收藏
下载
最近





















