查看完整案例


收藏

下载
整體大空間都是以純白+原木色調,搭配上灰色沙發和地毯,這樣的裝飾顯得乾淨簡約又大氣。
沙發旁放置了健身器材,一邊運動,一邊看電視,運動起來也會感覺輕鬆不少。
餐廳位置做了卡座的設計,與餐邊櫃相連,滿滿的儲物空間,保持了美感又增強了功能性。
簡潔乾淨是廚房給人的第一感覺,黑白灰色的搭配,高級又不單調;L型的櫥櫃設計,無論是佈局到收納,把空間利用率提到最高。
主臥配色素雅,舒適自然,飄窗的設計增加了臥室的情調,坐在窗前,一本書,一杯茶,即可卸下一天的疲憊。
次臥整體以暖色為主,搭配上灰色床品,在光影下,整個色調看著很舒服溫馨。
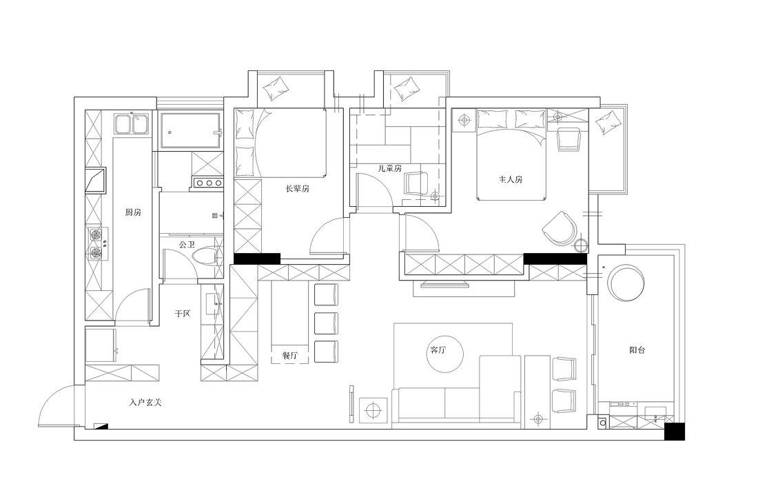
把原生活陽台打掉,同時擴大了廚房和衛生間的空間, 使空間更大更具可能性,衛生間做了乾濕分離的設計,就算工作日的早上,也不容易出現搶衛生間的情況,大大提升了生活效率。
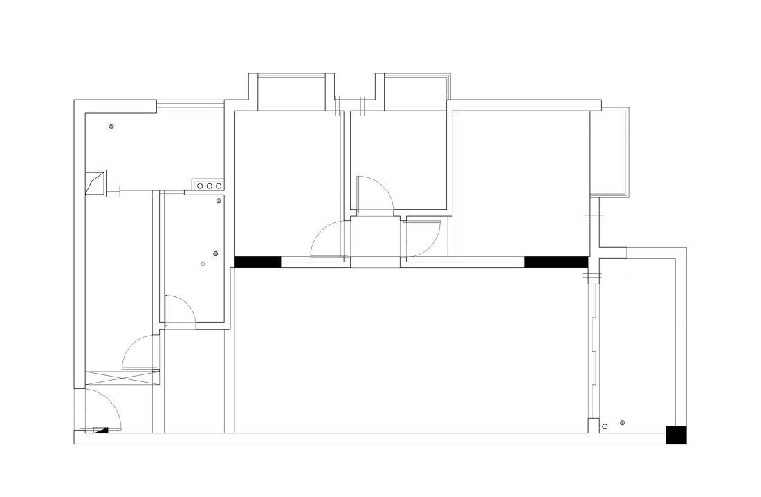
改造前
改造后:
本案居住成員是2人+貓貓一隻,利用了原生活陽台的區域,把廚房和衛生間進行擴大,讓廚房的操作空間更多。衛生間也可以把洗手盆外置,可以把貓貓的家也安排了,另外還增加了浴缸,使功能更全面化。
客服
消息
收藏
下载
最近













