查看完整案例


收藏

下载
入户玄关将厨房与用餐区分隔开,右侧是中厨,左侧是用餐区。由于是一梯一户户型,收纳鞋子的储物柜移到电梯厅处,一出电梯即可换鞋入屋,把灰尘隔绝在门外。玄关没有了储物柜和换鞋凳,大大提升了空间的美观度和整洁度。
客厅配有柔软豪华的圆润弧形沙发,大大的落地窗将户外的江景一览而尽。设计师巧妙运用光线以及色彩对光源的感知,为纯粹的空间带来变化,构筑简约却不乏内容的艺术空间。
在宽敞的横厅格局下,设计师将餐厅和客厅设置在一起。白色纹理大理石岛台与木色餐桌拼成一体,简约线条式吊灯充满现代设计感,橙色餐椅的加入为空间注入一抹活力,与墙上的挂画形成色彩呼应!
书房轻盈宁静,大面积的窗户设计增加空间的采光,温暖的胡桃木与橙色的单人沙发椅子,彰显意式的高贵优雅,令人沉醉。靠窗位置提高一级地台做榻榻米,除去繁杂的工作外,还是你的冥想空间。
男孩房丝绒质感的蓝灰色床品带着柔软的舒适,床头背景墙由深灰色与浅灰色木饰面拼接而成,加上独特精致的造型装饰,把品质生活展现得恰到好处,透露着不着痕迹的优雅。
设计师在飘窗加上了书桌,并在一侧做了置物格,使整个卧室空间的收纳功能更加强大。
业主想给三岁的女儿打造一个城堡式的空间,低饱和度的粉色带来浪漫柔和的气息。城堡式上下床一体成型的设计让空间得到最大化的利用。
主卧打破原有格局限制的设计,实现了空间最大化利用,没有了非承重墙的阻碍,光线和风都能畅通无阻进入室内,也让空间更加连贯。
通顶岩板立柜隔断又作床头背景墙,整个空间有着舒适的氛围格调,又有轻奢意式的华丽优雅。
浴室设计同样清新有格调,大理石地板与墙面在金属的点缀下,让空间更显澄澈、透亮。一扇金色边框玻璃门将浴室划分干湿区,挂壁式马桶、壁龛、洗漱台、储物柜、浴缸,空间能被完美划分使用。想象在一个悠闲的周末,在这里泡一个舒服的热水澡,一边享受着落地窗外的阳光与美景是多么的惬意。
原始平面图
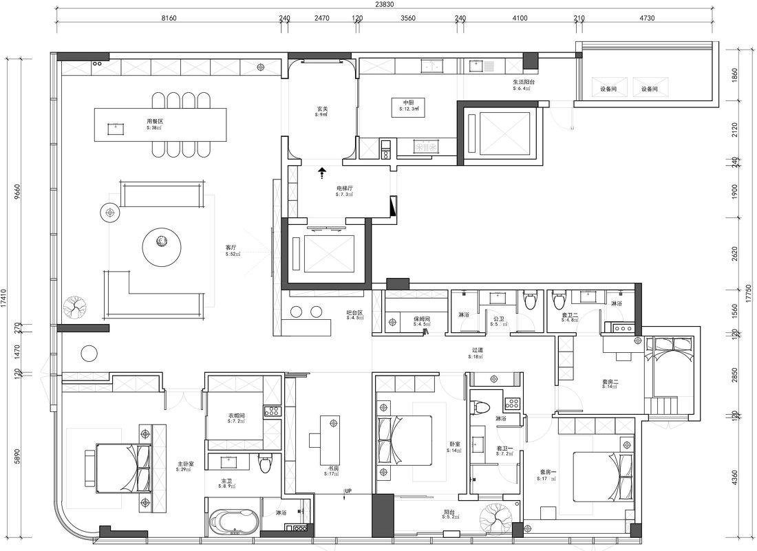
空间布局图
客服
消息
收藏
下载
最近


















