查看完整案例


收藏

下载
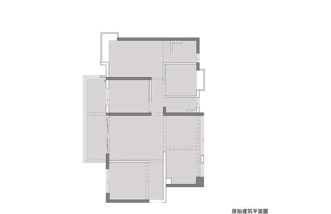
在平面布局上根据居住者的需求进行功能布局,保留三个房间的设计,另外将书房与储物间功能融合起来,打造出可隐藏起来的储物间。阳台封闭起来后,设置洗衣区、清洁工具收纳区以及儿童玩乐区,将空间充分利用起来。
复古与精致
Retro and Sophisticated
复古是一种历经时光的沉静之美,经过岁月沉淀之后,细细品来,更有一番滋味。
精致是一种生活态度,也是一种生活品味,饱含着我们对生活的热爱之情,在细碎的时光中找到生命的美好。
整个空间布局,从玄关入门开始,便能窥得全貌。无隔断墙设计结合家具进行空间分割,整个客餐厅空间在视觉上隔而不断,更显宽敞大气。
巧妙的混搭风格,将空间的美感表现至最佳状态,同时让每一块区域都发挥出不同的使用功能,陈列有序的深棕色书柜、墨绿典雅的餐厅收纳区域、棕色系的皮质沙发、淡雅透光的窗纱,都演绎着令人着迷的复古雅致。
在某个时刻,挑上一本喜欢的书,沏一壶爱喝的茶,静静的翻阅、细细的阅读,让时光慢下来,享受生活的美好。
生活的仪式感
Ritual Sense in Life
光透过百叶窗洒下零散的影子,随着太阳东升西落,餐厅的风景变得格外丰富。
这精致的一角,是女主人的主场,陈列着她心爱的物品,花纹繁复的手工咖啡杯、复古的音响、娇媚的花朵......每一处都表达着她对生活的热爱。
经过精心装点的餐边柜,体现出满满的生活仪式感 ,让日常的用餐,都有了优雅的气息。
一株生机勃勃的芭蕉树,给空间带来清新的感觉,与墨绿色的墙面互相呼应,在这一刻呈现出富有活力的家居氛围。
厨房为U型布局,在符合人体工学的条件下设计出舒适的烹饪动线,同时充分利用每一个区域,将所需的厨房功能配置完整。
书房的设计充分考虑在家办公、阅读爱好、收纳展示的需求。
明暗光线下两种氛围感的书房一角,黑色木质百叶窗,一开一合间,两种体验感觉。书房里静谧的一角,适合静下来阅读和思考。
采用黑色木质百叶窗,可随时调节出想要的书房氛围,而融合了木材和玻璃材质的书柜,设计感突出,从书柜的隐形门进去后,是收纳容量充足的杂物间。
主卧面向南面,采光充足的同时反光也比较强烈,床头背景墙采用柔和而不失活力的杏色、南瓜色,让整个卧室环境变得舒适宜人。
可爱的粉色风格女孩房,从墙面、窗帘、床单到装饰画、台灯都是以粉色系为主,饱和度适中的粉色调,精心的装点着这个充满少女心的房间。
主卧卫生间采用三分离设计,将衣帽间的功能也融入在内,两侧是衣帽收纳区,一黑一白的对比非常有设计感。
客服
消息
收藏
下载
最近

























