查看完整案例


收藏

下载
设计师以现代风格的简练为基调,融入唯美东方元素,打造恬淡静逸的现代新中式雅居。结构上着重突出整体空间的层次美,加上简约大气的造型,舒适的功能设计,在视觉上给人以质朴气息,色调清雅朴素,让东方美学意韵融满整个空间。
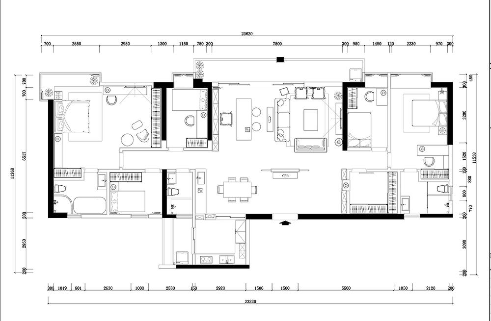
本案的业主有着浓厚的东方情结,热爱茶道,热爱生活,对品质有自己的追求,重新规划后的平面布局较之从前,更加合理与合适,动静区域划分有序,满足了家人共享天伦之乐。
文化人性的生活空间,处处运用了以物质表达精神的空间方法,勾勒出一种生活的平常心,一种气度,一种静笃。
客餐厅之间保持一种开放式的状态,使整体空间更具通透性,增强了视觉延伸感和空间感。胡桃木与白色烤漆的碰撞形成之西厨,淡化了中式的严谨,表达出对清雅含蓄、端庄丰华的东方式精神境界的追求。
精致、文艺、养眼是对厨房最极致的诠释,谁曾想过,烟火气也能令人倍感清新。
不拘泥于单一的设计风格,即使在沉稳古朴的新东方主义氛围下,仍为孩子保留了清新活泼的小天地,雅致,而温馨。
主卧室整体色调都比较温馨,充满生机的孔雀绿雅致而温柔,力图呈现出轻奢优雅的文化气息,追求深沉中显露尊贵,典雅中浸透文艺的设计表现。
客服
消息
收藏
下载
最近



















