查看完整案例


收藏

下载
还没找装修前业主一家已经有了比较一致的意见——经典黑白灰的现代风格。房屋的本身采光还是比较好的,但是户型不是很理想,尤其是现在大家看到的这个开放式厨房,原来是一个餐厅,从右手边进入厨房,再从厨房进入生活阳台。建筑风格很老派,而且使用起来也不是很方便。现在把餐厅改成开放式厨房看起来宽敞了很多。
吧台的吊灯是我最喜欢的,好清洁,而且时尚感十足。
厨房吧台视角,把餐厅改成开放式厨房看起来宽敞了很多。吧台的吊灯是业主最喜欢的,好清洁,而且时尚感十足。
玄关处墙面和柜面都是白色的,放上一束鲜花,或者艺术品都非常好看。
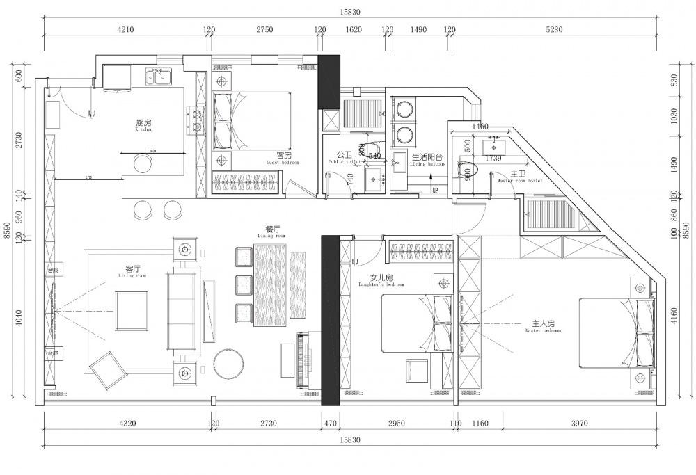
原建筑图
改造后
原厨房
装修前
黑白搭配,这地方放一些心爱的收藏和装饰物都是极好的。
原来的户型看起来很小,尤其是客厅这块,只能逼仄来形容,后来把客房改成餐厅,这样改空间看起来宽敞了很多,采光也很好。
极简主义,好看的都是家居。电视背景是用大理石和储物柜打造出来的,整体效果还不错,重点是把储物问题完美解决了。
这餐厅就是之前说的客房。业主房子面积是130方,这样改,感觉房子大了不止一点点。
这餐厅就是之前说的客房。业主房子面积是130方,这样改,感觉房子大了不止一点点。
装修前
装修后
原主卧缺了一个角,看起来很不舒服、现在设计师用饰面板给它一包再配上吊灯反而成一个个性有时尚感的亮点了。
主人房的柜体设计也是一个亮点。这个案例除了留白还有“留空”使空间得到一个更好的延伸感。
原主卧衣帽间
悄悄地告诉你,不规则空间处理得当反而会成为一大亮点。
儿童房的设计需要考虑的东西比较多。因为孩子会不断长大每个阶段喜欢的东西都会不一样。
我们有一整面的柜体去容纳孩子未来的各种可能性,包容性更强。
公卫干湿分离,镜子后面是可以储物的,一些洗漱的小物件都可以放上去。纳繁存简才能更加耐看,保持整洁。
客服
消息
收藏
下载
最近


























