查看完整案例


收藏

下载
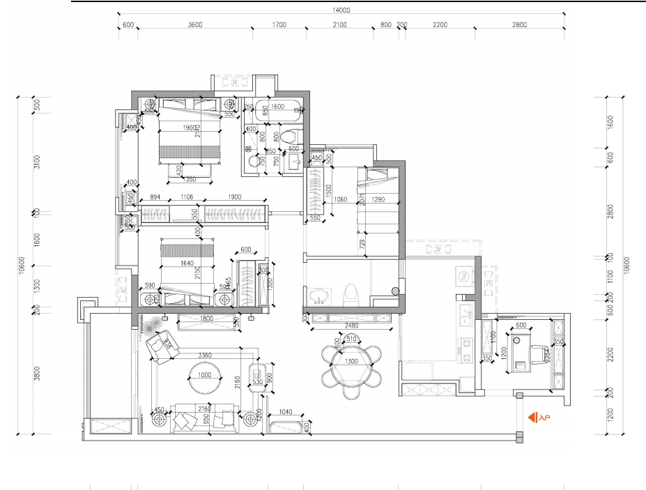
平面户型图
色彩分析:
主色:高级灰 米色
点缀色:金色、淡紫色、宝蓝色
灰色:灰色是一种很空易打造山高级感的色彩,以高级灰演绎在新古典风格,别致时尚和现代经典,以金色点缀,
看似复杂的设计,在高级灰的搭配,呈现出简奢的高贵感。
米色:米色是介乎于驼色和白色之间的一种都市色彩,它具有驼色的优雅大气,但又比驼色多了几分清爽宜人它具
有白色的纯净浪漫,但叉比白色多了几分温暖和高贵。
材质解析:石膏镶金属线边背景墙,绒布沙发,黑色大理石纹方几,精致水晶灯与黄铜玻璃摆件以及柔软顺滑的丝绸窗帘...
生活的仪式感从餐厅开始,高级而富有质感的大理石纹餐桌与简洁不失设计感的餐椅,与时尚精致的束型水晶灯,让就餐体验变得雅致而又有温馨
定制餐边柜,采用两侧开门中间台面展示的对称形式,既美观又能减少落尘。两边放入珍藏的美酒,配上氛围灯,绝对是颜值担当。
整体以白灰色为主色调,横平竖直的金属线条加繁复的石膏线板,奠定房子的复古基调。
绒布沙发与黑色台面方几占据客厅中心,贵妃椅搭配大理石边几与浅色地毯融为一体,呈现优雅质感。
电视背景墙中轴采用大理石镶金属线边,两侧则用石膏墙板加金属线条,平衡空间视觉分量,两侧悬挂水晶壁灯,拉伸空间的同时增加了墙面细节。
客厅装饰画
走廊改编后的柜体,增加了收纳容量,且与整个空间的调性保持一致。中部镂空,放入精致的装饰品,增加艺术感。
主卧
主卧采用衣柜与电视柜一体的定制柜体,黄铜金属手柄与透明的开门柜皆为细节之处,体现主人的优雅品味。
飘窗两侧做了收纳与展示的空间,点睛之笔来自窗帘边的古典纹理元素。
主卧卫生间采用大理石纹搭配透光玻璃,让原本精装的灰色调打造成通透的卫浴空间;
灯光主要使用镜前全方位灯带加洗浴的专项射灯,保证整个空间的明亮与舒适性。
相比于其他空间,儿童房的设计更显温馨,多层储物大衣柜,足以满足孩子的衣物分类与收纳。
精致的飘窗,给孩子提供阅读的空间;
次卧整体调性与客厅一致
入门处一侧做了装饰面板的柜体设计,以视线进入卧室的角度连接到衣柜开门处,每个细节都把握得刚刚好,正是户主做事待人的完美展示。
玄关装饰画
客服
消息
收藏
下载
最近






























