查看完整案例

收藏

下载
在珊瑚橘极简空间中,以优雅的弧线取代生硬的墙体。搭配柔和的光感,展现了一个宁静空灵的世界,在官感上透出源源不断的艺术气息。
边角均以曲线进行收边,牵系流畅的行走视觉动线,上下辅搭间接照明,让光感随着路径缓缓透散流动,予以连贯且安稳的视觉效果。
VIP室的镜面、灯具,软膜天花同样呼应曲线元素,让极简基调圆融地收拢温度细节。空间涵容着现代气息的简约宁静,每一处空间像皮肤一样,细腻、柔和。
极致的简约,成就极致的大美。接待室设置在大型的窗户边,通透大窗光线充足,曲线从平面延伸到立面,弧形是空间的支撑,弧形是空间的亮点,柔软的弧线适配简单的色彩,给人舒适、自然、轻松之感。
当曲面构造的空间体量被赋予朴实的功能,超现实主义的空间便能柔和的刺激人的感官。
肌理、光线、空间相互交织,软膜天花的柔和光线,使得每一个客人尽情享受这片刻之旅,触动着内心最潜在的柔和。
色彩是一个平衡的镜头,每一寸弧线空间都是一个精彩的角落,透过色彩我们体验自然与数码的实境。
低饱和度的色彩,对称式的半弧形窗户和门洞,极简的装饰,曲径通幽,妙不可言。
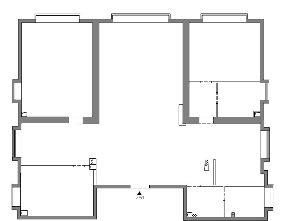
原始户型:
设计方案:
1、前厅 2、水吧 3、接待厅 4、双人美容室 5、单人美容室 6、美甲室 7、员工更衣及洗衣间 8、公共卫生间 9、空调设备间 10、vip美容室 11、时尚家 12、办公室 13、储藏室
设计分析:
功能分区
人流动线
工作人员
潮流达人
空间构成
客服
消息
收藏
下载
最近























