知末
知末
创作上传
VIP
收藏下载
登录 | 注册有礼
知末案例   /   家装空间   /   平层   /   新中式平层

新中式轻奢

2019/07/26 00:00:00
查看完整案例
微信扫一扫
收藏
下载
新中式轻奢-0
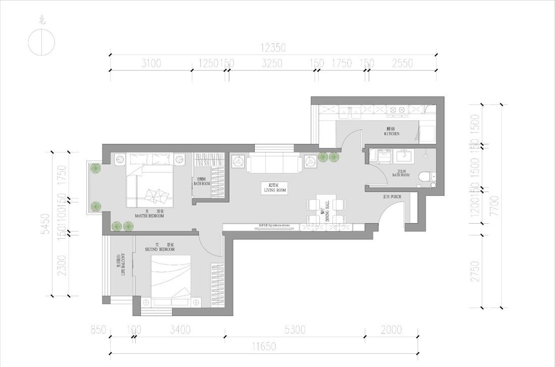
原始户型中,入户门开启后正对卫生间门,改变卫生间门位置,改善卫生间私密性的同时增加玄关空间的整齐性,丰富玄关的功能性。
电视背景墙做定制柜,增加客厅与餐厅的储物空间。胡桃木材与米色软包之中加入香槟金属条更显高贵。为城市生活增加了一丝精致的小资情调。
新中式轻奢-3
扩大主卧室面积,在主卧中增加一个衣帽间用于储物。与主卧室连接的阳台由于过于狭长,在原始户型的状态下使用效率低,所以将阳台与次卧打通,增加次卧的使用面积和朝阳面积。
新中式轻奢-5
新中式轻奢-6
新中式轻奢-7
新中式轻奢-8
原始平面图
新中式轻奢-10
南京喵熊网络科技有限公司 苏ICP备18050492号-4知末 © 2018—2020 . All photos and trademark graphics are copyrighted by their owners.增值电信业务经营许可证(ICP)苏B2-20201444苏公网安备 32011302321234号
客服
消息
收藏
下载
最近