查看完整案例


收藏

下载
原始房屋状态。
-原始户型-
房屋为八十年代的老学区房,户型呈长条状。进门一堆杂物映入眼帘,没有玄关而言,厨房和卫生间入口相对,且面积狭小不方便使用,不合理的布局规划使得空间采光不足。
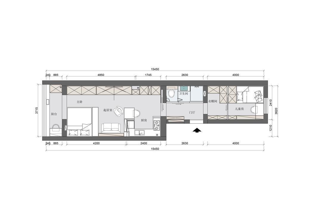
-改造后平面布局-
1.将原始卫生间移至房屋的中间区域,既扩大了起居室空间,又方便了儿童去卫生间的距离。
2.厨房改为开放式厨房,增大了原始空间的宽阔性,丝毫没有拥挤感。
3.北侧卧室划分出衣帽间区域,分担门厅的衣帽储物。
动态空间展示。
看似普通的玄关柜,实则内藏玄机。柜体下半部分为鞋柜,上部柜体利用原始窗洞的空间做了 加深处理,可做收纳柜来使用。
沙发:karimoku
绿植:马醉木
壁灯:宜家
起居室作为室内的主要活动区域,兼具了多种功能。将沙发旋转90°是一个办公空间,屋主可以在这里办公、学习,空间功能灵活多变。
贯穿于半个室内的通顶储物柜简约而不简单。承担冰箱、洗衣机、电视柜、及衣柜、家务柜的功能。白色烤漆柜体和铝槽灯的运用处处体现着极简美学。
抽屉柜局部采用玻璃材质,便于内部机顶盒设备能接收遥控信号。
穿过门厅就是开放式厨房,整体以白色岩板为厨房的主要材料,搭配白色烤漆木作,空间简洁明亮。
吊柜底部的手扫灯满足备餐、烹饪的照明需求,大大提升了烹饪的效率和幸福感。
厨房和起居室之间预留采光口,也便于空间互动。
卧室区域床头靠背做了加厚处理,方便放置装饰摆件;侧边壁龛也可放置。小巧的阅读灯满足业主夜间阅读的需求 。床头靠板延伸出两米长书桌,以区分空间的功能。墙面简约至极的留白让各体块间的穿插更为统一。
墙面凹龛处理,满足睡眠时可以放置手机或水杯。凹龛安装嵌入式光源,起到夜灯的效果。
床头两侧分别安装阅读壁灯。
阳台位置设立男主人工作区。
衣帽间是将原小卧室空间分隔规划出来的,L字行衣帽柜能加大空间的储物量。衣帽间定制柜和儿童房衣柜之间嵌入木色推拉门,通过柜体来对空间进行分隔。
局部涂刷彩色漆使围合形的地柜床多增加一些趣味性。
以黑板漆装饰儿童房,让孩子充分施展自己的绘画才能,寓教于乐,打造独一无二的生活痕迹。
儿童房空间虽小,但是功能分区明确。
书柜和玩具展示柜。吊柜下方安装嵌入式灯条,为绘画墙带来照明。
嵌入式推拉门,侧面设立暗转拉手和锁扣。
如厕区安装独立洗手台,在早高峰时候,可以在这个位置进行洗漱。
三分离卫生间,便于家人能同时使用。
卫生间幽灵推拉门。
卫生间延续极简的空间格调,鱼肚白石材与原木色材质集合在同一空间内,不显杂乱,井然有序。
设计师团队
客服
消息
收藏
下载
最近


































