查看完整案例

收藏

下载
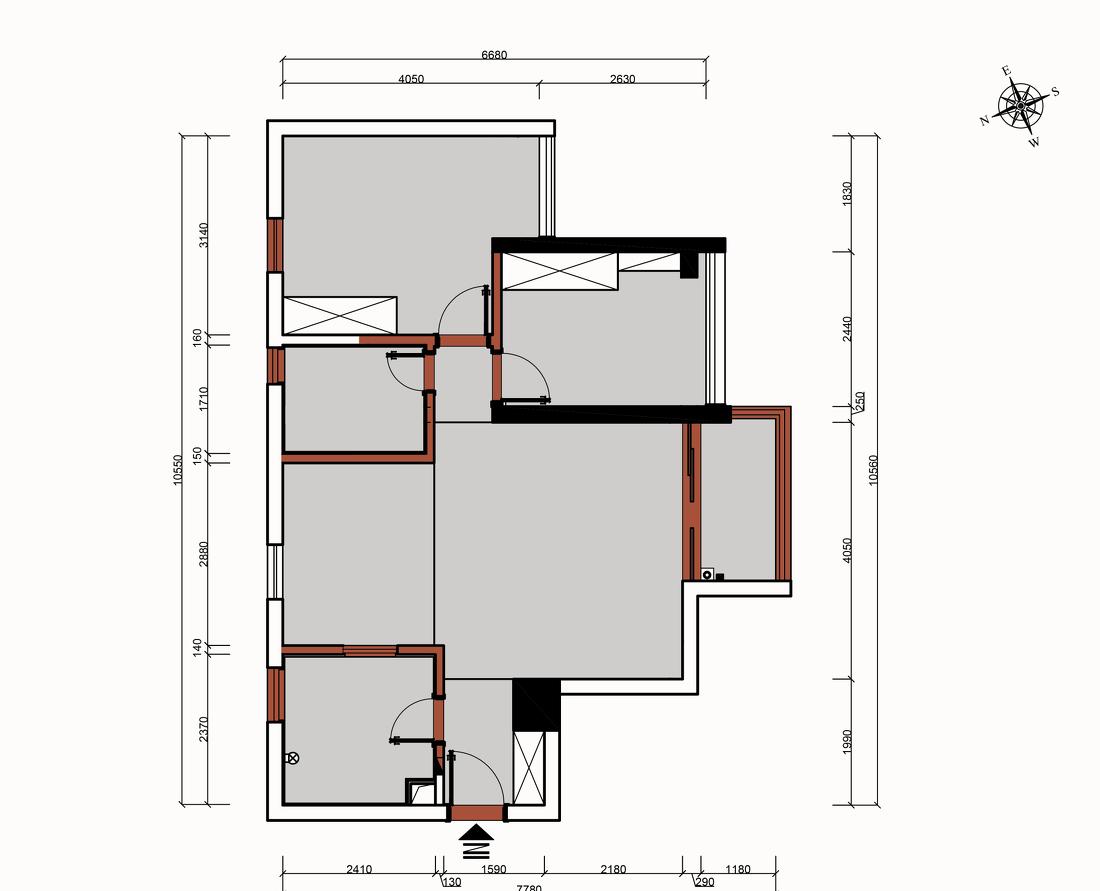
在格局上,我们基本拆掉了能拆的所有墙体,划掉了原本繁复的结构,得到了现有的一体化……
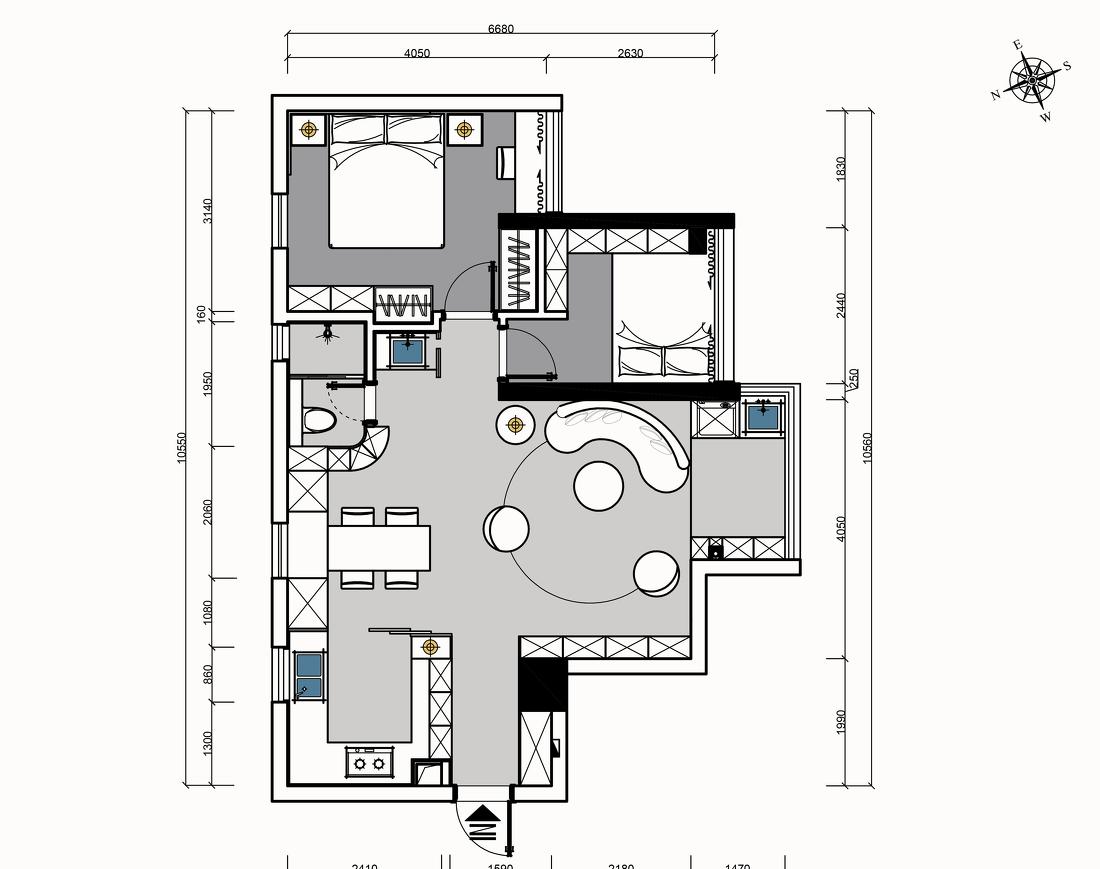
进门口左手边与厨房隔墙,做了一整排鞋柜,扩大收纳空间,一整排柜门式的全身镜,打造空阔感的同时,满足了出门前的着装整理需求。
客厅风格上整体以雅致的新中式作为主调,全屋整体用木地板使空间更加温润,以中式园林圆拱门为灵感,做了一个圆形的收纳、展示藏品柜,摆放一些旅行中淘到的精致小物件。
将厨房与餐厅打通,扩大了整体面积,原有的卫生间拆除,做成弧形的柜子来分离干湿区,尽可能扩大餐厅的空间。
开放式厨房,视觉上有着较大的面积,为了满足业主的做饭需求,中西厨结合。
把原卫生间与主卧隔墙拆除一半,利用凹位增大衣柜的同时扩大了室内面积,床头摆放了中国传统的刺绣,将中式氛围感拉满。
次卧利用柜门作了跳色设计,增加整个空间的层次感,简洁而不单调,榻榻米床增加收纳。
洗手盘外置,做到干湿区分离的同时,也把空间利用到极致,以木调和灰调为主的卫生间,质感满满。
客服
消息
收藏
下载
最近



















