查看完整案例


收藏

下载
从大门进入,首先是茶室或偏厅。茶室安排在这个位置,是考虑到方便居者日常使用,且不是孤立地喝茶品茶,可以和沙发上的家人进行互动,让茶深入家庭习惯中。
一楼大厅以白色和灰色为主色调,运用线条感强的造型与软装,打造干净利落、简洁大方的居住环境和空间氛围。
此外,天用团队十分注重软装各要素间的联系和呼应。比如颜色、材质、造型等等,落入各种细节里,让空间和谐又趣致。
在整体冷淡风的氛围里,以热情灿烂的橙色单人椅和拼色抱枕相互呼应,点亮空间。
L型沙发与单人椅摆放的位置亦有讲究,对角线放置形成良好的沟通环境。
楼梯用灰色墙漆由上至下涂刷背景墙,保有流畅的连贯性。透明玻璃扶手让光线可以肆意穿透,光感舒适。
餐厅是灰色的冷色调设计,搭配现代轻奢水晶吊灯,低调中的奢华,彰显高品质的生活品味。
圆餐桌取团团圆圆之意,一家人围在一起吃饭,热热闹闹,亲亲密密。
天井位保持原有的落差,做成围坐感、沉浸感较强的儿童玩乐区。
木地板质感良好,没有地砖那么清凉,小朋友也可以直接坐;根据小朋友的身高做收纳矮柜,质轻的收纳抽屉方便小朋友自己收拾玩具,养成随手收拾、保持整洁的生活习惯。
以西厨区的收纳柜为模板定制卫生间门和墙面的木饰板,相同的造型从厨房延伸至卫生间,使卫生间门很好地隐藏起来。
餐厨区分为以中岛为中心的三部分:中厨、西厨和餐厅,风格一脉相承。一方面是避免中餐的油烟跟气味飘散到公共区域;另一方面拓宽了操作区和储物空间,同时动线具有相当的灵活性。
左侧是儿童玩乐区+储物空间,右侧是健身区+超大落地镜。
时人讲究言传身教。生活习惯的教导与性格的养成,需要家人的参与,在相处中受到家人潜移默化的影响。本案设计中充分考虑到这一点,打造多处亲子空间,让家人参与彼此成长的过程。
饮水吧台与半高隔墙有20CM左右的落差,在落差部分布置插座,方便小家电使用或者手机充电;同时这高度差可以遮挡台面的杂乱。
从颜色、灯光、材质等方面入手营造良好的观影氛围,360度环绕音响+超大屏幕视听效果一级棒。厚厚的隔音棉覆在四周,不会影响到其他空间,自由自在地享受音乐盛宴。
负二层的客卧。由于使用率不会太高,储物空间会相应减少;床品、挂画和墙漆是同一风格的款式,营造轻松的休息空间。
负一层的客卧。自然光源从挑空层柔柔打入,舒适而自然。
儿童房设计时,以实际居住者的喜好为主。有时小朋友的喜好跟我们想象的很不一样哦~
硬装上方正简洁,没有特殊的设计;从软装上营造符合年龄的童趣感。蓝白色调清新且冷静,很好地中和了各种小车车的色彩缤纷感。
二楼双分离卫生间的设计,方便小朋友的上学高峰期同时洗漱的需求。
洗手盆用长虹玻璃而不是墙体分隔,好看又透光;另一侧置物架上墙,充分利用空间。
一楼的卫生间不涉及洗浴功能,因此压缩了部分面积,仅保留洗手台和马桶。
主卧设计方正对称,稍显轻奢风,体现业主性格上的严谨和生活中的品味。在软装选购上,更注重物品的质感,崇尚少而精的生活态度。
金属材质素来简约时尚独具风格,局部点缀不失精致感。
L型衣帽间沿动线布置,顶天立地的柜子具备超大的储物量,满足业主的收纳需求。
三楼主卫包括双人洗手台、马桶、淋浴以及浴缸;鱼骨拼黑色瓷砖搭配地砖简约自然的纹理,充满生活品质的格调,非常美好。
三楼主卫包括双人洗手台、马桶、淋浴以及浴缸;鱼骨拼黑色瓷砖搭配地砖简约自然的纹理,充满生活品质的格调,非常美好。
负二层
负一层
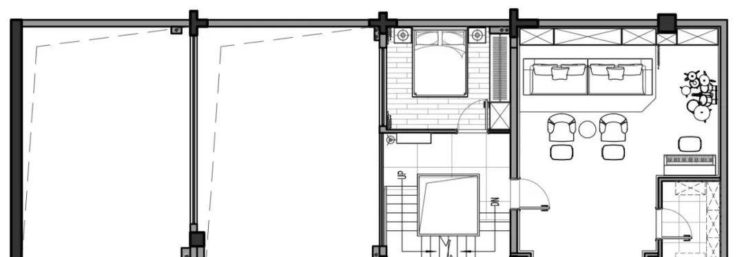
一层
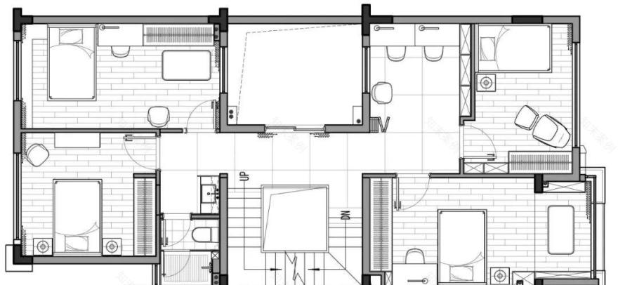
二层
三层
顶层
客服
消息
收藏
下载
最近



































