查看完整案例


收藏

下载
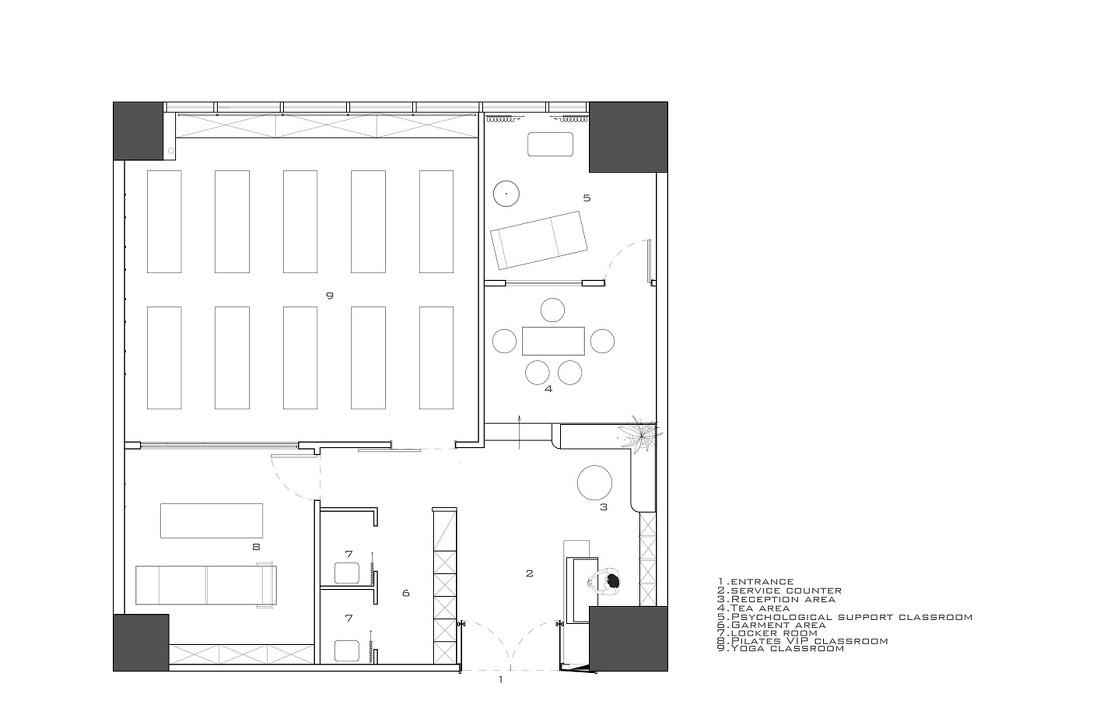
平面布置图 平面布局巧妙的利用了空间,最大的发挥其价值。既保证了特色瑜伽的功能使用,又保证了空间的开敞通透.....
利用步入式榻榻米抬高的高差,设计了接待休息的地方,节省了空间又巧妙的划分了两个区域的界限。
在接待处与心理疏导室之间采用了榻榻米平台设计,这里既可以作为接待喝茶给客人一个小憩和静思的地方。又可以灵活的变成提供私人授课的场地。关上后面的隐形格栅门,阳光透过圆窗格栅投影在茶桌上,给人一种暖洋洋的感觉,心情顿时平静下来,平和的气氛正好呼应了瑜伽馆的主旨让身心回归自然。
入口处开敞式鞋柜,既整洁又方便。拉手的细节,体现了设计师和经营者对细节的追求。
展示柜的设计,一方面可以延展空间,另一方面解决了现场管道问题。
光与影的交替~
走廊 分别通往大教室和私教室还有更衣区,大教室采用通透的玻璃门,而私教室采用圆形玻璃窗。分别满足了两种模式的切换。
大教室 窗台用于收纳道具与休息兼并
柔光帘让整个空间变得更加静谧
私教室看向大教室视角
普拉提私教室 与大教室一面玻璃之隔,既通透又能保证隐私
心理辅导室 一米阳光的去敞开心扉
一盏香的时间 给自己一个倾诉的机会,与自己和解,更好的面对明天......
最后来几张手机花絮
空中瑜伽
钵音疗愈
心灵疗愈
客服
消息
收藏
下载
最近






















