查看完整案例


收藏

下载
客厅改造前
客厅区域软装设计师给业主搭配了比较时尚的铆钉沙发。实木白蜡木的茶几。暗纹的蓝色壁纸,整个空间静谧美丽。
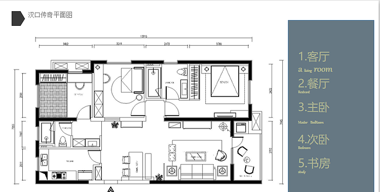
在书房部分做了个窗户弓|入自然光源增加书房的采光。
我们进门门处应该是属于没有玄关的类型。业主老公强烈要求他需要一个鱼缸,于是在进门处安置了一 个到顶的鞋柜,鞋柜中间挖空做 了一个小型鱼缸。鱼缸下面的柜子里面的最上层是安装了一个隔板,鱼缸的区域没有放小钥匙之内的随手品的地方,于是这些进门门的小玩意就安置在了柜子里的小隔板上,这样的美观度也是非常好的,和女业主的收纳理念是放眼看不见杂物的理念非常吻合。
客厅区域软装设计师给业主搭配了比较时尚的铆钉沙发。实木白蜡木的茶几。暗纹的蓝色壁纸,整个空间静谧美丽。
细节图
细节图
蜡白木的电视柜配上金属色的吊灯在这个空间低调不失奢华。
一整面的白色衣柜顶天立地,功能颜值都在线,床边两侧用垂吊金属元素的吊灯和家具烘托出华而不俗的气氛。
皮质的床头柜也不失华丽~
用餐结构基本是2人,在家吃饭频率暂时比较小,餐桌选用大理石台面的餐桌以及金属脚的设计,增加空间的协调感。
进门入眼原来是一面白墙为了增加屋子的采光使空间不压抑,安装了一个俏皮的窗户让房间变得通透明亮。
到顶的书柜,墨绿砖石花地毯,每一-件小物都彰显女业主的内涵深度,这一角是女业主钟爱之地。
复古丝绒绿座椅,休闲沙发,墨绿壁纸,复古鸟笼装灯地。
客服
消息
收藏
下载
最近

















