查看完整案例

收藏

下载
▲项目位置示意图
▲项目位置鸟瞰示意图
▲建筑总平面以及人流动线示意图
▲原建筑外观以及室内空间
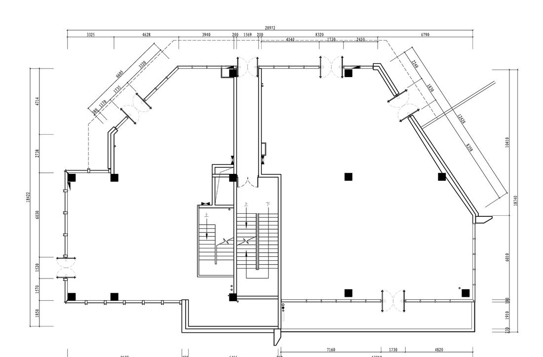
▲原建筑首层平面图
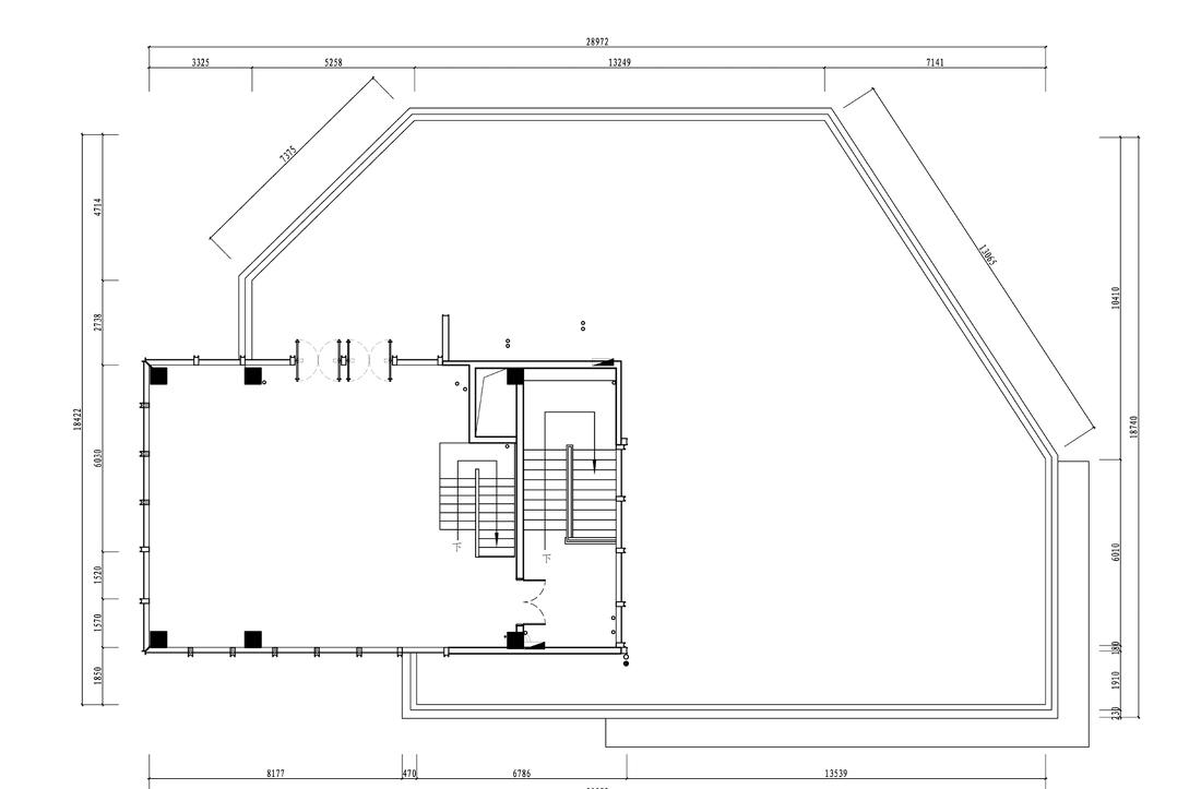
▲原建筑二层平面图
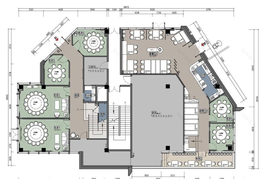
▲首层平面布置图
▲二层平面布置图
▲外门面
▲外门面
▲外门面
▲首层公共就餐区
▲首层公共就餐区
▲首层公共就餐区
▲首层公共就餐区
▲首层公共就餐区
▲首层包房
▲首层包房
▲首层包房
▲首层包房
▲二层公共就餐区
▲二层公共就餐区
▲二层公共就餐区
▲二层公共就餐区
▲二层包房
▲二层包房
▲二层包房
▲二层包房
▲天台
▲天台
▲天台
客服
消息
收藏
下载
最近

































