查看完整案例

收藏

下载
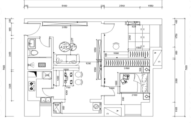
户型痛点每个区域都特别的小巧玲珑,主卧为了满足更多的储物功能设计师和业主达成共识用1,5米的床,次卧为了增加储物,选用了榻榻米。为后期儿童房做了储备。进门玄关处,门是内开。原始开发商的精装修是没有鞋柜的。为此进门离开走道的部分做了条半高的鞋柜和电视柜融为一柜。餐厅部分区域面积特别小。所以用了卡座式设计更省空间。
黑色简约茶几,配上黑白纹理地毯,与桌面黑白纸巾盒,千鸟格抱枕,黑白挂画。色彩呼应的特别好。
小小床头柜梳妆台合体。日常我化妆比较少,现在也是孕期这方面的东西不算太多。
由于客厅横向间距比较狭窄,所以借用了进门过道空间,做了一个竖向的摆放使用。增加客厅间距,还有一个小细节在于业主不喜欢沙发背对门,这样有人来从背后过特别没有安全感。
柜子和梳妆床头柜合为一体,特意释放了柜子于桌面平齐的一格来储放护肤品。梳妆台下面的柜子部分也可开合储物
客厅原始背景墙的地方也安放了半高的柜子,如果后期根据人口结构变化需要转向沙发使用特别方便。同时也增加了储物。
黑色简约茶几,配上黑白纹理地毯,与桌面黑白纸巾盒,千鸟格抱枕,黑白挂画。色彩呼应的特别好。
黑色简约茶几,配上黑白纹理地毯,与桌面黑白纸巾盒,千鸟格抱枕,黑白挂画。色彩呼应的特别好。
次卧飘窗台,软垫抱枕,小小游乐园
客厅原始背景墙的地方也安放了半高的柜子,如果后期根据人口结构变化需要转向沙发使用特别方便。同时也增加了储物。
进门玄关处做了一面黑板漆的墙面,特别童趣,为宝宝成长加分。由于鞋柜进门有点远所以用了简易挂钩收纳随手小物挂件,比如钥匙帽子未经等。
次卧现在做了多功能房兼具客房书房功能,后期过渡为儿童房,特意为我家猪宝宝选用可调节的座椅。
所有的饰品都是设计公司提供摆场专用哦。
客厅原始背景墙的地方也安放了半高的柜子,如果后期根据人口结构变化需要转向沙发使用特别方便。同时也增加了储物。
主卧比较小只能放1,5米的床。复古墨绿色墙纸,配上洗墙壁灯。氛围感特别好。
鞋柜i是半储物半鞋柜的功能,上面的挂钟丹麦品牌的仿版,组装出艺术感平衡感还是很难的~
宝宝2019年诞生的猪宝宝,设计师摆场的时候童趣提字,也是生活的小乐趣了。
客厅原始背景墙的地方也安放了半高的柜子,如果后期根据人口结构变化需要转向沙发使用特别方便。同时也增加了储物。
挂画上方的灯位都是调解过的,画上的光也是设计师专业调节角度哦。
为了节约空间做的吧台餐桌。可容纳3-4人就餐。由于平常就夫妇二人和小宝宝,这个餐桌还是够用的,如果人口比较多建议用成品餐桌哦,卡座没有成品餐桌椅子那么舒适,不过确实节约了很多空间哦~
为了节约空间做的吧台餐桌。可容纳3-4人就餐。由于平常就夫妇二人和小宝宝,这个餐桌还是够用的,如果人口比较多建议用成品餐桌哦,卡座没有成品餐桌椅子那么舒适,不过确实节约了很多空间哦~
主卧飘窗不大,设计师帮我把它打造成舒适的一隅。日常独处小憩的小美好
由于客厅横向间距比较狭窄,所以借用了进门过道空间,做了一个竖向的摆放使用。增加客厅间距,还有一个小细节在于业主不喜欢沙发背对门,这样有人来从背后过特别没有安全感。
千鸟格和藕粉抱枕的错落搭配,特别时尚~
客服
消息
收藏
下载
最近


























