知末
知末
创作上传
VIP
收藏下载
登录 | 注册有礼
知末案例   /   家装空间   /   平层

色彩魔方 | 小户型翻新大作战

2019/11/26 00:00:00
查看完整案例
微信扫一扫
收藏
下载
色彩魔方 | 小户型翻新大作战-0
色彩魔方 | 小户型翻新大作战-1
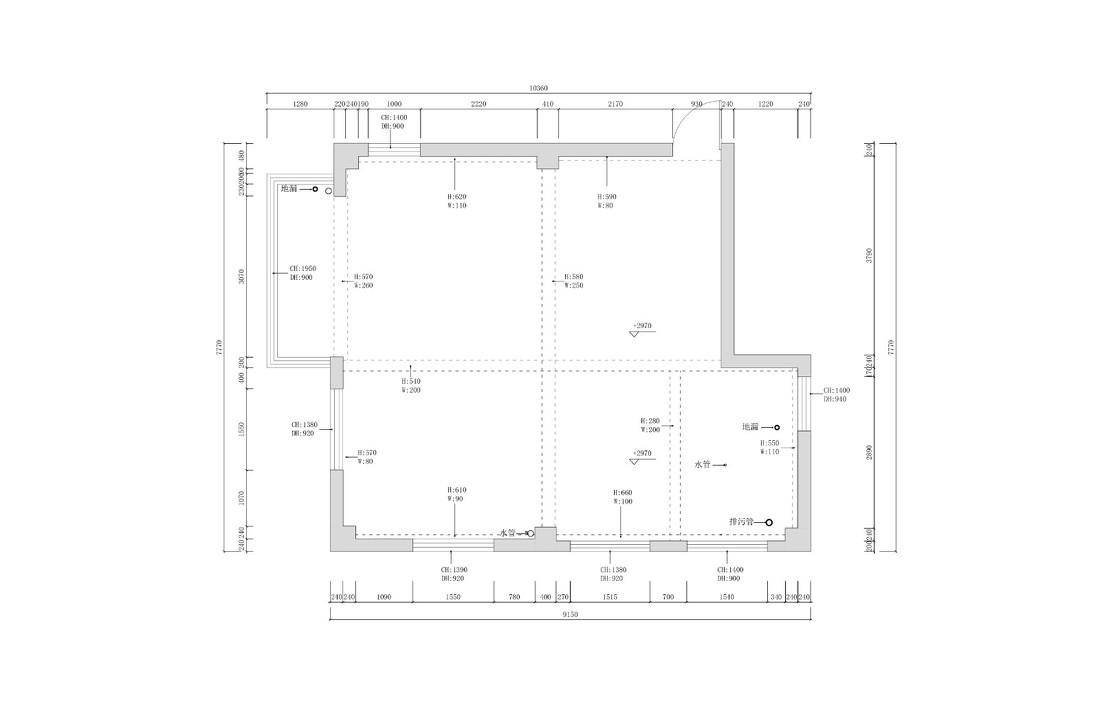
原始平面图
色彩魔方 | 小户型翻新大作战-3
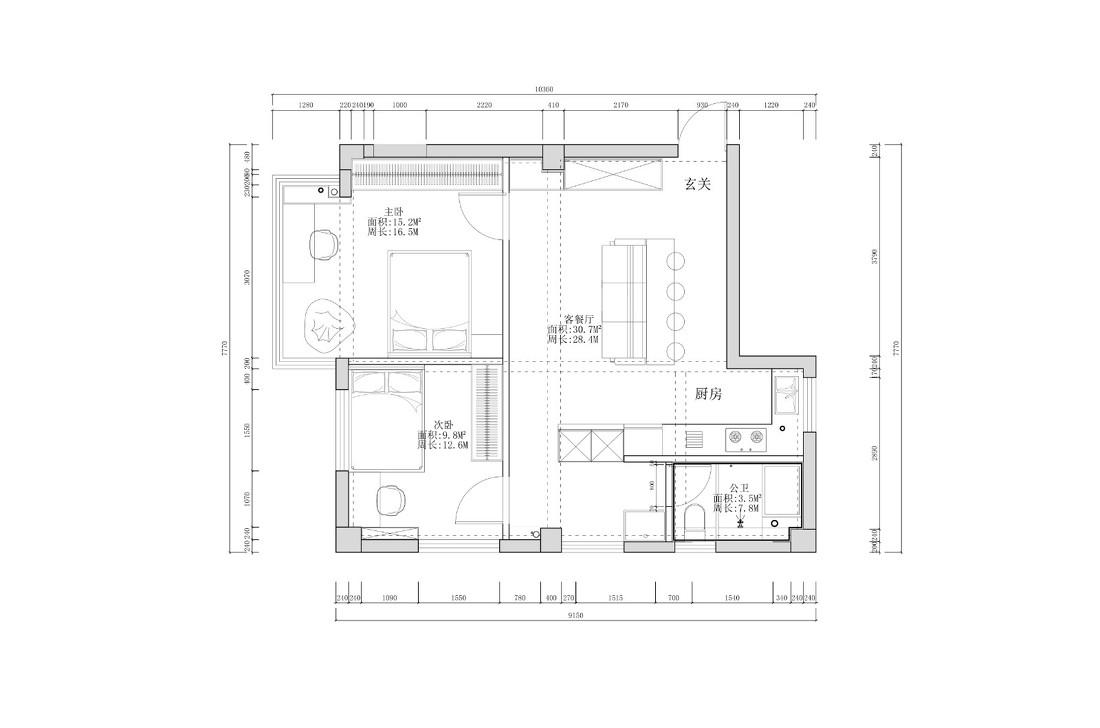
改造后平面布置图
色彩魔方 | 小户型翻新大作战-5
色彩魔方 | 小户型翻新大作战-6
色彩魔方 | 小户型翻新大作战-7
南京喵熊网络科技有限公司 苏ICP备18050492号-4知末 © 2018—2020 . All photos and trademark graphics are copyrighted by their owners.增值电信业务经营许可证(ICP)苏B2-20201444苏公网安备 32011302321234号
客服
消息
收藏
下载
最近