查看完整案例


收藏

下载
进门玄关部分虚实结合,巧妙的选用长虹玻璃屏风与木材,很好的营造视觉效果的同时,也让进门的视线有了种若隐若现的神秘感。
客厅部分:业主在卖上套房子时,把沙发和餐桌都保留了下来,他们说一是为了省钱,二是用着有感情了家具又没坏,他说反正家具我是要搬来的,如何与想要的小日式风完美结合就是你们的事情啦
稍稍打理过的沙发搬来接着用,在我们精心的搭配下,黑色沙发仍然与一切新的陈设显的那么和谐。
重新划分了合适区域安放了餐厅功能,搬来了旧餐桌椅,与空间毫无违和感。
整体色调离不开白+木色系,不需要太多的元素装饰,就能使整个空间看上去清新自然。
多功能房平常处于开放的状态,在这里可以亲子阅读;可以当工作区;可以做客房,我们希望给业主的是有限的空间里有更多的可能。
了解业主偶尔有亲友来做客的需求,我们设计了这款多功能沙发,有需要时打开沙发,拉上隐藏拉帘可以当客房使用,第二天再收起来回到平常状态。
主卧简约温馨,左侧的屏风是亮点,一方面为了填平了原墙体的凹位,同时选用木色瞬间丰富了原本大片灰色的墙面,也让卧室风格与其它区域更好的统一。
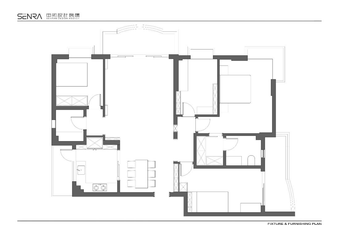
业主约我们去现场量房时,原先的主人还没有搬,我们进门后首先看到餐厅有点挤,而且放着各种零散物品,视觉感受不太好,转了一圈后发现,哇塞户型还有很大优化空间呐 存在问题: 1就是一进门就是餐厅了吧 2厨房虽然空间大,但是浪费的多呀,而且生活阳台要经过厨房用着不方便 3另外两个大大的阳台基本在长草,还是浪费 4然鹅,两个卫生间都很小,而且都没有淋浴房 ......
由于是老小区不是常规户型,而且墙体基本都可以拆,这给了我们更多的发挥空间,从动线走向,空间划分,动静分区等多方面考虑,把原户型都调整个遍,方案出来及效果表现都很顺畅的一稿通过了。 改造部分: 1三个阳台全部封起来划入室内,增加房子使用面积。 2原餐厅与厨房区域重新划分,增加了玄关功能,厨房做了比较实用的U字型,顺便让出一个过道给生活阳台,阳台保持隐蔽的同时与厨房互不干扰。 3动静区分,原靠近客厅的房间打开做了多功能区,把公共区域尽量做的宽敞明亮,睡眠区全部安排在静区.....
客服
消息
收藏
下载
最近















