查看完整案例

收藏

下载
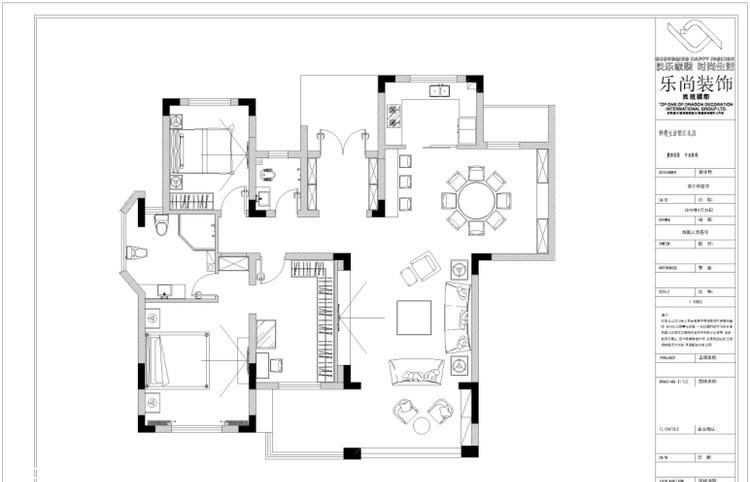
平面布置图
平面布置图
藉着室内空间的解构和重组,便可以满足我们对悠然自得的生活的向往和追求,让我们在纷扰的现实生活中找到平衡,缔造出一个令人心弛神往的写意空间。
客厅选用了外形线条柔和的铁艺灯,造型简洁而不失格调。在家具的选择,与硬装修上的欧式细节相辅相成,深色、带有西方复古图案以及非常西化的造型的图案家具,与大的氛围和基调相和谐。巨大的落地窗,阳光和微风透过轻盈洁白的窗帘铺面而来,给人意想不到的浪漫与温馨。
客厅选用了外形线条柔和的铁艺灯,造型简洁而不失格调。在家具的选择,与硬装修上的欧式细节相辅相成,深色、带有西方复古图案以及非常西化的造型的图案家具,与大的氛围和基调相和谐。巨大的落地窗,阳光和微风透过轻盈洁白的窗帘铺面而来,给人意想不到的浪漫与温馨。
墙面装饰可以选择一些比较有特色的材料来装饰房间,比如借助碎花墙纸进行装饰,既清新,又和谐。房间的画框选用了看上去比较厚重的实木材料,当然并不排斥描金、雕花甚至看起来较为隆重的样子,相反,繁简搭配恰恰是风格所在。
墙面装饰可以选择一些比较有特色的材料来装饰房间,比如借助碎花墙纸进行装饰,既清新,又和谐。房间的画框选用了看上去比较厚重的实木材料,当然并不排斥描金、雕花甚至看起来较为隆重的样子,相反,繁简搭配恰恰是风格所在。
墙面装饰可以选择一些比较有特色的材料来装饰房间,比如借助碎花墙纸进行装饰,既清新,又和谐。房间的画框选用了看上去比较厚重的实木材料,当然并不排斥描金、雕花甚至看起来较为隆重的样子,相反,繁简搭配恰恰是风格所在。
充满童趣的儿童房底色以白色、粉色为主,白的的书桌、粉色的吊灯、粉色的坐灯与粉色的kitty相得益彰。布置相同的两张儿童床,让人不经意的就联想到,这一定是一对粉嫩又可爱的双胞胎姐妹。
充满童趣的儿童房底色以白色、粉色为主,白的的书桌、粉色的吊灯、粉色的坐灯与粉色的kitty相得益彰。布置相同的两张儿童床,让人不经意的就联想到,这一定是一对粉嫩又可爱的双胞胎姐妹。
客服
消息
收藏
下载
最近














