查看完整案例


收藏

下载
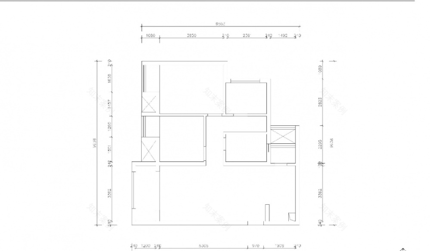
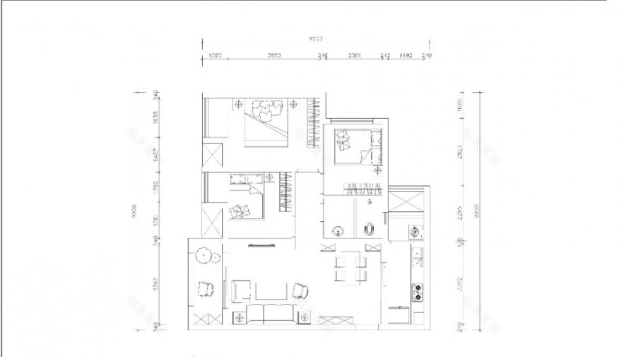
这是一个小三室,刚需户型。
设计师陈巧灵感来源于业主的一句话:“我们这个行业工作力度太大,干扰因素也多,我就想回家后抛开纷争,舒缓下来,修身养性,陪陪我的家人。”
于是,在几番沟通下,风格定义为现代中式。整个设计也在现代背景下提炼了传统东方的元素,给新居注入了一丝文人墨客的骚气和岁月静好之象。
考虑业主预算因素,所以我们轻硬装重软装,户型改动非常简单,只做了必要性的改动:次卧扩大。
让人快速沉淀的力量莫过于缄默的黑色,和平干净莫过于纯粹的白色。整体装修用色也干脆采用黑白作为主调。
业主一家喜阅读,设计师陈巧去过他们的曾住地,随处都是散放的书本。于是结合背景墙造型,增设了两笔书柜,中间用板材造型凸出留圆,覆精挑出来的石材,既有了中式水墨山水的味道,又增添了借色借景之情趣。
过道用最简单的吊顶,保证照明即可,让人的视线集中,统一借景于沙发背景墙中,再放置一盆适合在室内的绿植增加生动。
小编顺手给大家介绍几种好看好养的适合室内种植的中大型绿植(绿萝吊兰之类的小型常规植物就不提了):千年木、散尾葵、琴叶榕、铁线蕨、棕竹、虎皮兰、一叶兰、金钱树、绿宝、龙血。
卧室采用适当的木饰面配一副花鸟壁纸,软装用一点几何民族元素和亮色点缀,提亮空间彩色。
厨房采用黑色玻格门,简单搭配灰色橱柜,干净利落。
阳台必不可少的杂物柜!一定记得内部留一壁高高的储物空间哦。(可以放梯子或高一点物件)。再陪上一个塑木小桌,一把滕椅,有家、也有诗意和远方。
客服
消息
收藏
下载
最近











