创作上传
VIP
收藏下载
登录 | 注册有礼
知末案例
/
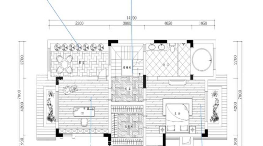
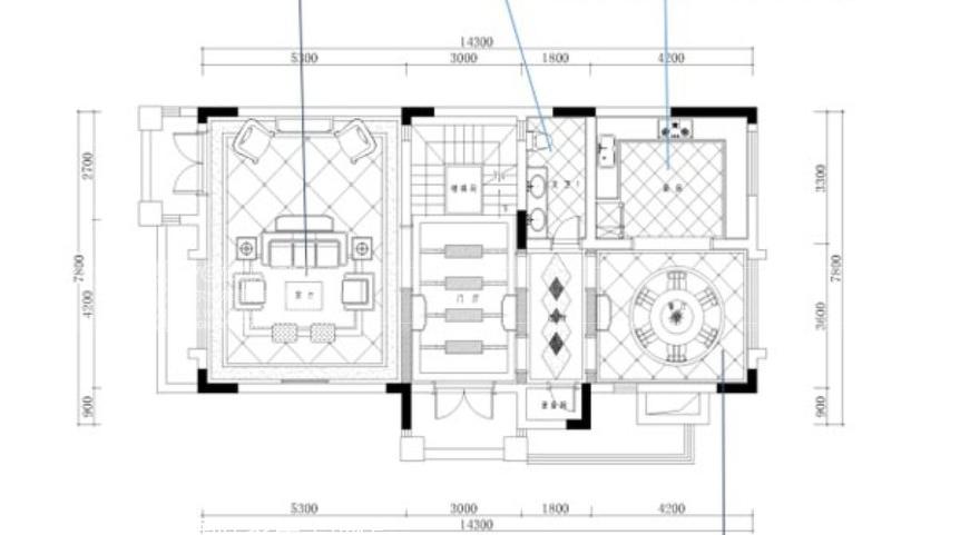
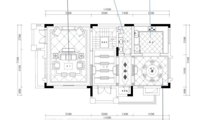
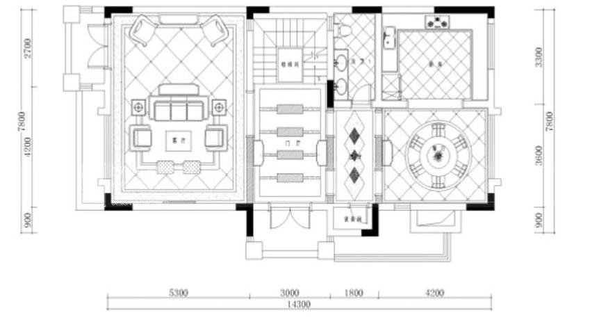
维尔维尔国际家居装饰
融创•嘉德庄园
2018/04/08 00:00:00
查看完整案例
微信扫一扫
收藏
下载
分享
你可能还喜欢
换一换
极简大宅 House in Sotogrande丨西班牙丨Fran Silvestre Arquitectos
湖泊亭阁丨加拿大丨Agence Spatiale
赖特 1911 年设计的 Taliesin 别墅 | 室内设计亮点与评价
柯布西耶的现代建筑杰作——普瓦西萨伏伊别墅
流水别墅
Gas Natural 巴塞罗那总部设计
晋愉林畔
万科城
俊峰香格里拉 1
万科江樾
龙湖蔚蓝岸
融汇香山
渝能明日城市
融创奥山
龙湖U城
万科渝园
协信阿卡迪
客服
消息
收藏
下载
最近