查看完整案例


收藏

下载
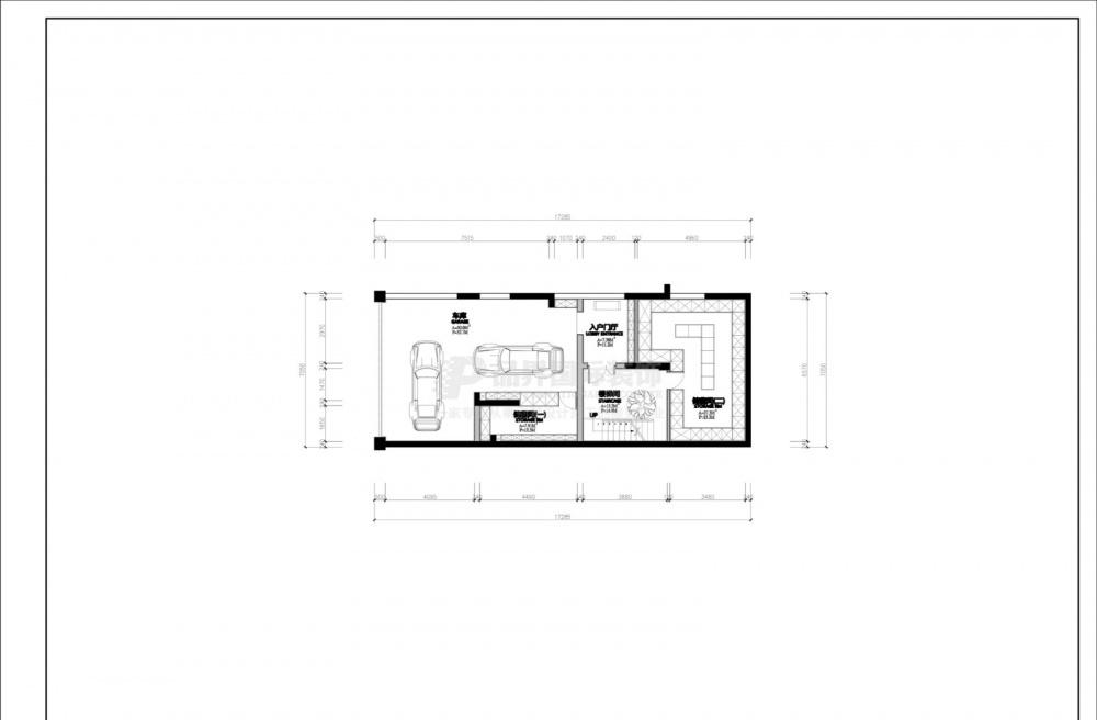
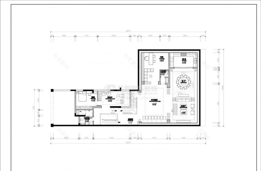
本案户主为2位80后,有一个可爱的3岁儿子,从事地产业,对家有一种特殊的情怀,沟通前喜好美式,经过深入沟通后,最终把风格定格在现代风格上,于是就有了下面的设计
本案户主为2位80后,有一个可爱的3岁儿子,从事地产业,对家有一种特殊的情怀,沟通前喜好美式,经过深入沟通后,最终把风格定格在现代风格上,于是就有了下面的设计
本案户主为2位80后,有一个可爱的3岁儿子,从事地产业,对家有一种特殊的情怀,沟通前喜好美式,经过深入沟通后,最终把风格定格在现代风格上,于是就有了下面的设计
本案户主为2位80后,有一个可爱的3岁儿子,从事地产业,对家有一种特殊的情怀,沟通前喜好美式,经过深入沟通后,最终把风格定格在现代风格上,于是就有了下面的设计
本案户主为2位80后,有一个可爱的3岁儿子,从事地产业,对家有一种特殊的情怀,沟通前喜好美式,经过深入沟通后,最终把风格定格在现代风格上,于是就有了下面的设计
本案户主为2位80后,有一个可爱的3岁儿子,从事地产业,对家有一种特殊的情怀,沟通前喜好美式,经过深入沟通后,最终把风格定格在现代风格上,于是就有了下面的设计
本案户主为2位80后,有一个可爱的3岁儿子,从事地产业,对家有一种特殊的情怀,沟通前喜好美式,经过深入沟通后,最终把风格定格在现代风格上,于是就有了下面的设计
本案户主为2位80后,有一个可爱的3岁儿子,从事地产业,对家有一种特殊的情怀,沟通前喜好美式,经过深入沟通后,最终把风格定格在现代风格上,于是就有了下面的设计
本案户主为2位80后,有一个可爱的3岁儿子,从事地产业,对家有一种特殊的情怀,沟通前喜好美式,经过深入沟通后,最终把风格定格在现代风格上,于是就有了下面的设计
客服
消息
收藏
下载
最近











