查看完整案例


收藏

下载
紫玉会所 600平米 新中式装修风格 卧室,将现代风格融入到中式风格中,装饰材料以木材为主,非常讲究空间的层次感以及空间上的对称关系
紫玉会所 600平米 新中式装修风格 餐厅区,将现代风格融入到中式风格中,装饰材料以木材为主,非常讲究空间的层次感以及空间上的对称关系
紫玉会所 600平米 新中式装修风格 休闲区,工作闲暇时可以小憩一会,喝喝茶,运动休闲,非常惬意。
紫玉会所 600平米 新中式装修风格 景观区,在需要隔绝视线的地方,会使用中式的屏风或窗棂、中式木门、工艺隔断和博古架
紫玉会所 600平米 新中式装修风格 贵宾区,此案例客厅亮点在于电视背景墙与沙发背景墙的对称呼应,电视背景墙采用了浮雕的效果,印有一些吉祥的纹样,这就恰恰与沙发背景墙后面的山水画招相呼应,也凸显出中式风格的庄严恢弘,大气蓬勃,张弛有度
紫玉会所 600平米 新中式装修风格 会客厅,将现代风格融入到中式风格中,装饰材料以木材为主,非常讲究空间的层次感以及空间上的对称关系
紫玉会所 600平米 新中式装修风格 视听室,将现代风格融入到中式风格中,装饰材料以木材为主,非常讲究空间的层次感以及空间上的对称关系
紫玉会所 600平米 新中式装修风格 休闲区,中国风并非完全意义上的复古清明,而是通过中式风格的特征表达对清雅含蓄、端正丰华的东方东方精神境界的追求,新中式风格主要包括两个方面基本内容,一是中国传统文化意义在当前时代背景下的演绎。一是对中国当代文化充分理解。
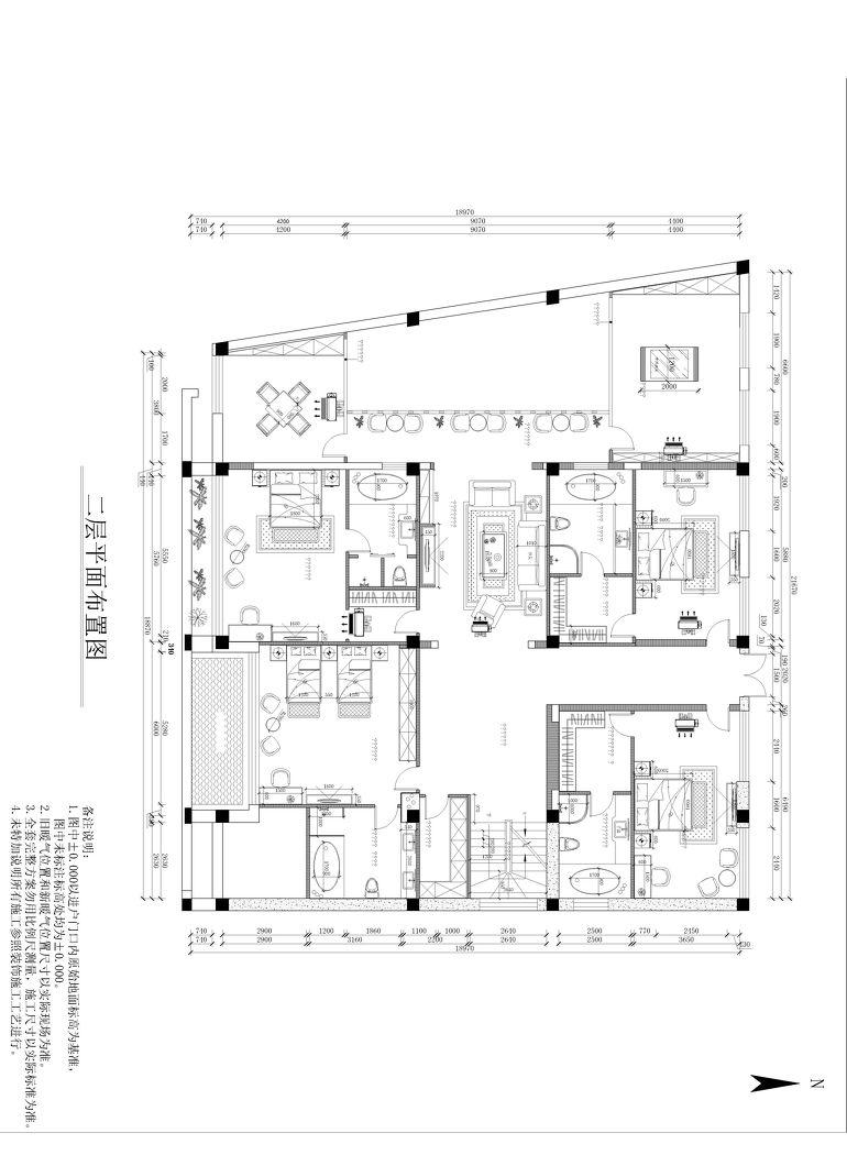
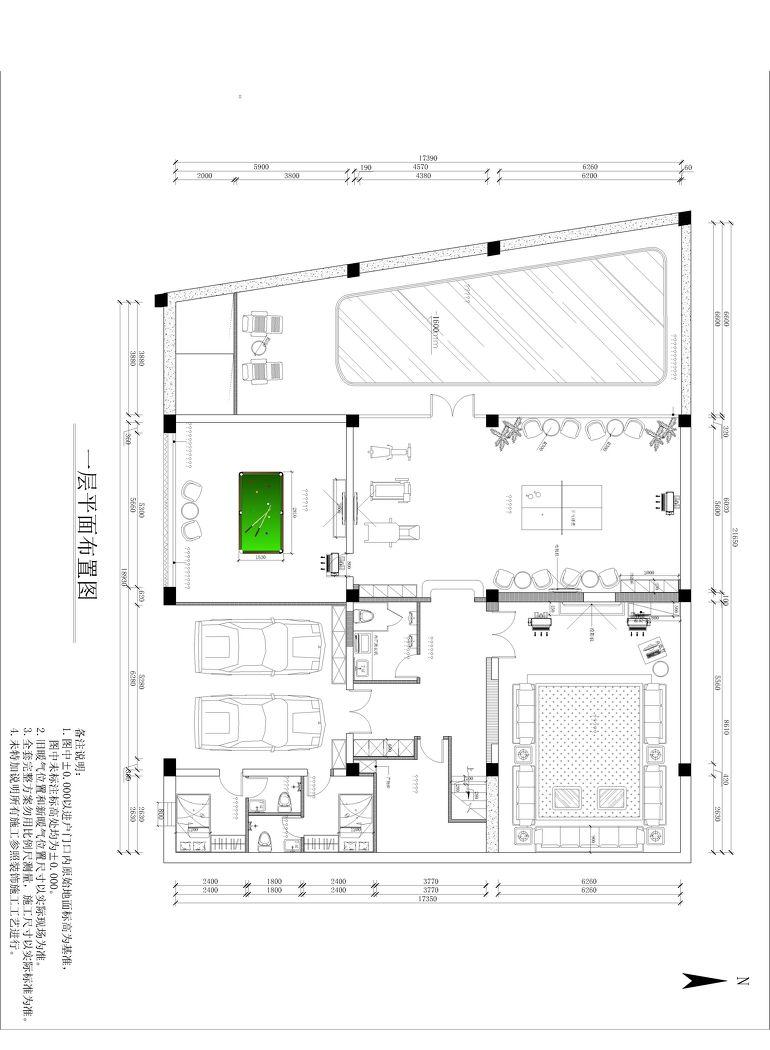
尚层别墅装饰 紫玉会所 600平米 新中式装修风格 平面布置图
尚层别墅装饰 紫玉会所 600平米 新中式装修风格 平面布置图
尚层别墅装饰 紫玉会所 600平米 新中式装修风格 平面布置图
客服
消息
收藏
下载
最近













