查看完整案例


收藏

下载
实地勘测之后发现原户型结构布局不是很理想,没有客厅,餐厅光线不够,卫生间很狭小,卧室空间尺寸储物不足。要在狭小的空间里,充分满足业主各个空间的功能和利用,还要兼顾展现设计的创作灵感和风格,本是对设计师极大的挑战。然而我们却认为这反而是一种新的体验和尝试。
在初步沟通的时候,《虎妈猫爸》正在热播,女业主很喜欢里面学区房给一家三口带来的温馨风格,我们在看过之后,也深深地为“虎妈”的装修功底折服。于是我们将“虎妈”家的风格沿用到业主家,一开始就将青、橙、黄、玫、绿几个色彩组合定义融合到整个房屋设计之中,主色选用的是Tiffany蓝色,这种色彩的饱和度不高,让空间少了粘腻感,多了阳光呼吸的气息,高饱和度的亮色软装点缀反而让空间显得清爽。
简洁、粉嫩、清新、明亮,是我们对这次设计的概述,为了孩子求学,在59平米的小空间里展开生活,在清透果绿,粉嫩可餐的家庭气息中寄放他们的理想,情感与回忆,总是让人产生一种特别的励志和感动。
微微一笑 很是励志鼓舞……
“青橙” 亦是积极向上……
生活中的我们,都需要有这种生活态度,一个家也是这样,都不如微微一笑很“青橙”……
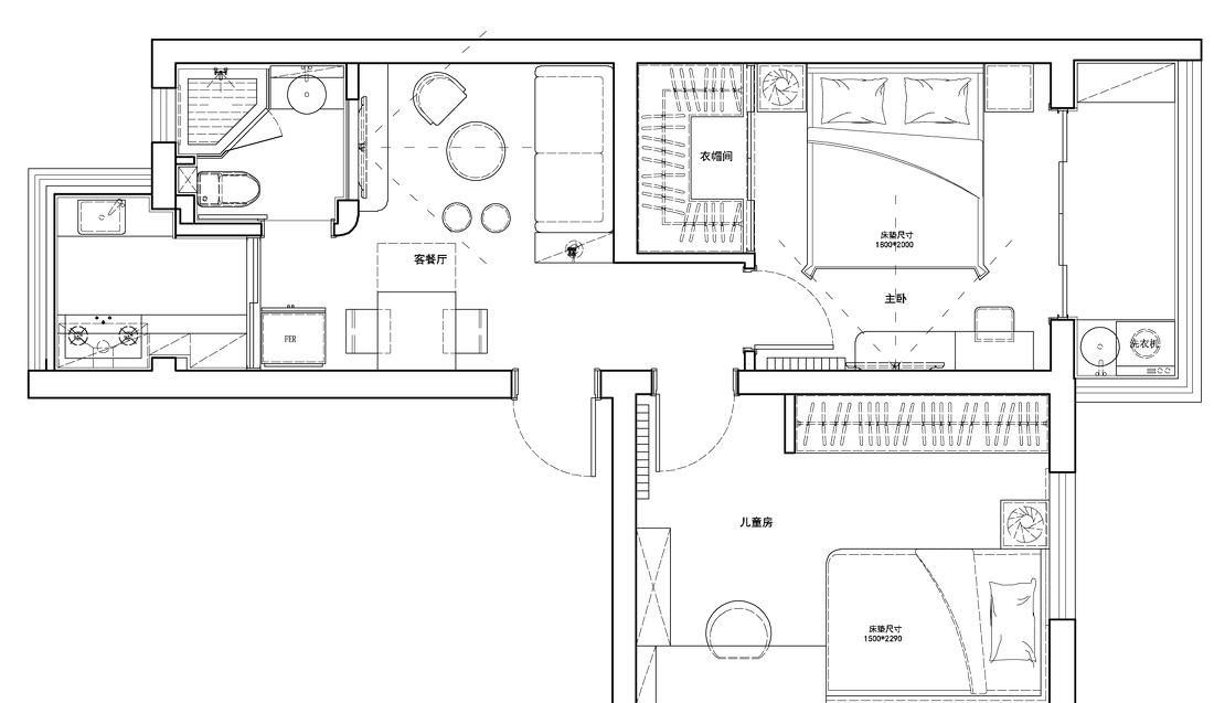
原始平面图
设计平面图
客服
消息
收藏
下载
最近





















