查看完整案例


收藏

下载
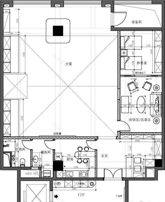
(图为中粮道场平面图)
(图为中粮道场顶面图)
作为一名禅修跨级设计师段元女士不但在私人高端别墅的设计道路中行走了17载的岁月,在禅修修行的道路中也经历了数十载的时间,再次期间还不断的引领着时尚高端的客户,以及一些道场的设计。内心清净一切境界皆是美景,我们在生活中如果好好用心、反观、自性,就能自我净化心地,则无处不是清净的道场!的确,不论是工作还是生活,都需要保持一颗平静的内心,修行及是如此。
位于北京市顺义区安详大街的中粮祥云国际生活区的道场,便是禅修跨界设计师在2015年完成的密宗佛堂的主导设计,其目的便是为人们带来淡然清雅、宁静超凡的空间意境,追求人与自然、天人合一的和谐境界。
道场空间中洋溢着大气、自然、静寂、清雅的氛围,净化着步入道场中的人们心灵中的浮燥。空间运用色彩、灯光、材料的对比与搭配,借景造景,相互渗透,打造出远离尘世喧嚣,质朴无瑕,返璞归真的高品质禅修场所。
段元设计巧妙的将客厅与各个空间的界线打开,弱化界线,使客厅变成每个空间的过厅,各个空间也能独立。采用精巧的构思,自然得体的空间比例;在平面布局上规模灵活,变幻无穷;在空间结构和利用上,造型丰富,讲究禅修的韵律美。
道场是一处理想的冥想和打坐的场所,漫长的一生,有事不尽人意,有人来来去去,更多地是身不由己的平凡琐碎。做人当如泡茶,该怒放时怒放,该淡却时淡却。茶能养人,养心,更能养性情。茶,能治这无所适从的惶然。
茶中有禅,由世味煎熬,风烟熏染,经清水冲泡,盈盈一波青碧,一酽一淡,知心知性。学会在忙碌中抽身,剥离浮华和他人目光,坐下来实实在在地喝杯茶,一友,一茶几,四面围风,闲话少许,让心和步调都慢下来,一些看不开理不清道不明的人事也就淡了。
喝茶,静心。匆匆流水的岁月里,多点从茶中学来的淡然,就少了现实失意的虚荣。茶与禅有相通之道,均重在主体感受,非深味之不可。饮茶需心平气静地品味,讲究井然有序地吸饮,以求环境与心境的宁静、清净、安溢。参禅要澄心静虑地体味,讲究专注精进,直指心性,以求清逸、冲和、幽寂。
品茶是参禅的前奏,参禅是品茶的目的。二位一体,水乳交融。茶禅共同追求的是精神境界的提纯与升华。“学禅务于不寐,又不夕食,皆许其饮茶。人自怀挟,到处煮饮,从此转相仿效,遂成风俗”,生动描述了老僧参禅烹茶时闲静雅致的情景。
历史成长
项目合作
禅·修
演·讲
客服
消息
收藏
下载
最近





























