创作上传
VIP
收藏下载
登录 | 注册有礼
知末案例
/
家装空间
/
平层
/
TCD国际室内设计
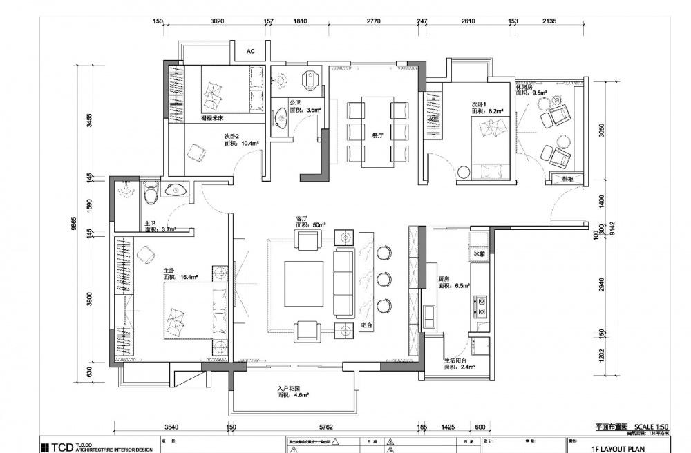
原木质感 当北欧遇上MUJI
2019/07/14 00:00:00
查看完整案例
微信扫一扫
收藏
下载
分享
你可能还喜欢
换一换
西班牙极简主义住宅设计 · NIU 160 住宅
重庆万科悦湾 A2 洋房
沈阳中心城 SOHO 公馆 | 现代简约风格的魅力
简约北欧风,温暖你的家
朗诗绿郡 160m2 美式精装房设计
太平李宅的珥本设计
港式轻奢 金色奢华梦
寻梦时光 简约多彩的空间
都市质感生活 | 简约北欧风家居设计
简约木质空间,电视背景墙巧妙收纳
洁净空间下的质感与魅力
爱上北欧-江门格林春天67号住宅
北欧遇MUJI,将色彩简洁,将材质丰富
珠海中信红树湾林董别墅
澳门天天火锅 | 精致设计与美味并驾齐驱
不一样的灰调-台式简约
粤美特名医中心(高端医疗)
江门市新会区沙堆镇 杨宅自建别墅(北欧简
客服
消息
收藏
下载
最近