查看完整案例


收藏

下载
初入空间,门斗以圆形的方式呈现,四分之三处位于室外,四分之一处则位于室内,既成为内外相互呼应的衔接,又以拥抱的姿态致意到来的人。
中国传统的圆文化, 以对“圆”的亲和为源头,儒、道两家的圆道观和阴阳五行时空观为核心, 合乎于自然,又超越了自然,成为人们审美中所追求的“自由的境界”。
入口正对面为同仁堂的体验馆展示区,开阔的空间塑造独有的仪式感,顶面天花三个圆形互为镶嵌,中间为凹,两侧凸出,与传统文化中的阴阳概念不谋而合,又寓意三阳开泰。
大堂明亮通透,以自然质感的木色与白色作为空间的主色调,温和的浅色大理石与的纯净木色相融,冷暖之间,相得益彰。
空间中所有的线条皆为曲线,灯带、墙面等等,于感受而言,圆滑的曲线,柔和的造型减少了人与人之间的隔阂与生疏,焕发出亲密与信任的生命形态,在此刻,这里变成为一个疗愈心灵的空间,换言之,空间塑造情绪。
光与影的营造构成了空间艺术的物质与精神的表现特征。无论是柯布西耶的“建筑是光线下形状正确、绝妙、神奇的游戏”,还是路易斯•康的“设计空间就是设计光亮”,都在生动的诠释光影之于空间的意义。
对于空间光线的运用,设计师有其独特之处。所到之处皆为泛光源,温和而明亮,避免了直射光源的照射。弧形的灯带与墙面在形体上形成呼应,贯穿空间,使其更具节奏性与整体性。
空间有其独有的韵律和节奏,设计师不禁锢于某种风格,以“去风格化”的设计语言,如自然之变化,或自由、或多变,但都在光影落下的瞬间变成永恒。
随之步入同仁堂文化展示区,层层绿意的掩映之中,丰富而又微妙的色彩冷暖变化,使画面唤发出了本身的色彩感染力,微妙之间使空间多了一份灵气生动的浪漫情怀。
中央区域设计师没有用传统式实墙作为隔断,而是以半透明的玻璃隔断,赋以山水之墨,大气磅礴。一方面使空间更加通透,打破实墙的压抑感,另一方面又以山水之态氤氲空间氛围,空灵而自然。
空间是光和色的载体,亦是设计师理性修养和敏锐的感受以及娴熟技艺的完美结合。色随光变,光移影动,千变万化,神秘莫测,似一首美妙无比的协奏曲,又似一首对自然爱意的抒情诗。
祛邪扶正为中医的概念与原则,设计师则将三间朝阳的办公区用作中医大师的工作室,而另一侧设计师同样根据不同的功能将空间一一划分,打造舒适尺度的合理空间分配。
光影使空间流动,而独具文化底蕴的造景艺术则使空间沉淀下来,漏窗透影、移步易景,每个窗景大小各异,小中见大且曲折含蓄,蜿蜒之间,塑造景深和层次,引人探求回味。
初极狭,才通人,复行数十步,豁然开朗。好的设计于意料之外却情理之中,空间的转换与虚实变化,于无形之中增强层次感、纵深感、空间感,给静态化的画面赋予灵动性,同时,予以更为丰富的视觉美感。
初极狭,才通人,复行数十步,豁然开朗。好的设计于意料之外却情理之中,空间的转换与虚实变化,于无形之中增强层次感、纵深感、空间感,给静态化的画面赋予灵动性,同时,予以更为丰富的视觉美感。
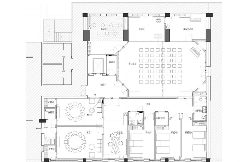
△1F 平面图
△2F 平面图
项目名称:北京同仁堂粹和康养体验中心
设计公司:AFFD设计事务所
主创建筑师:高志强
辅助设计师:陈德利
设计面积:1055㎡
项目时间:2018
灯光顾问:朱海燕
合作艺术家:王旻,陈文焕,方印
摄影师:史云峰
家具:索菲莉尔 , 大正家具, 楽舍
客服
消息
收藏
下载
最近



































